G13 1SG - 4 bedroom terraced house for sale in Munro Road, Jordanhill…

View on Property Piper

4 bedroom terraced house for sale in Munro Road, Jordanhill, G13

Summary - 60, MUNRO ROAD, GLASGOW G13 1SG

4 bed 2 bath Terraced

Newly renovated four-bed home in Jordanhill School catchment with garden and garage.
Four bedrooms across three levels, flexible family layout
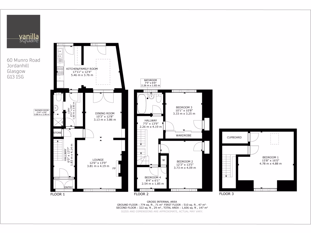
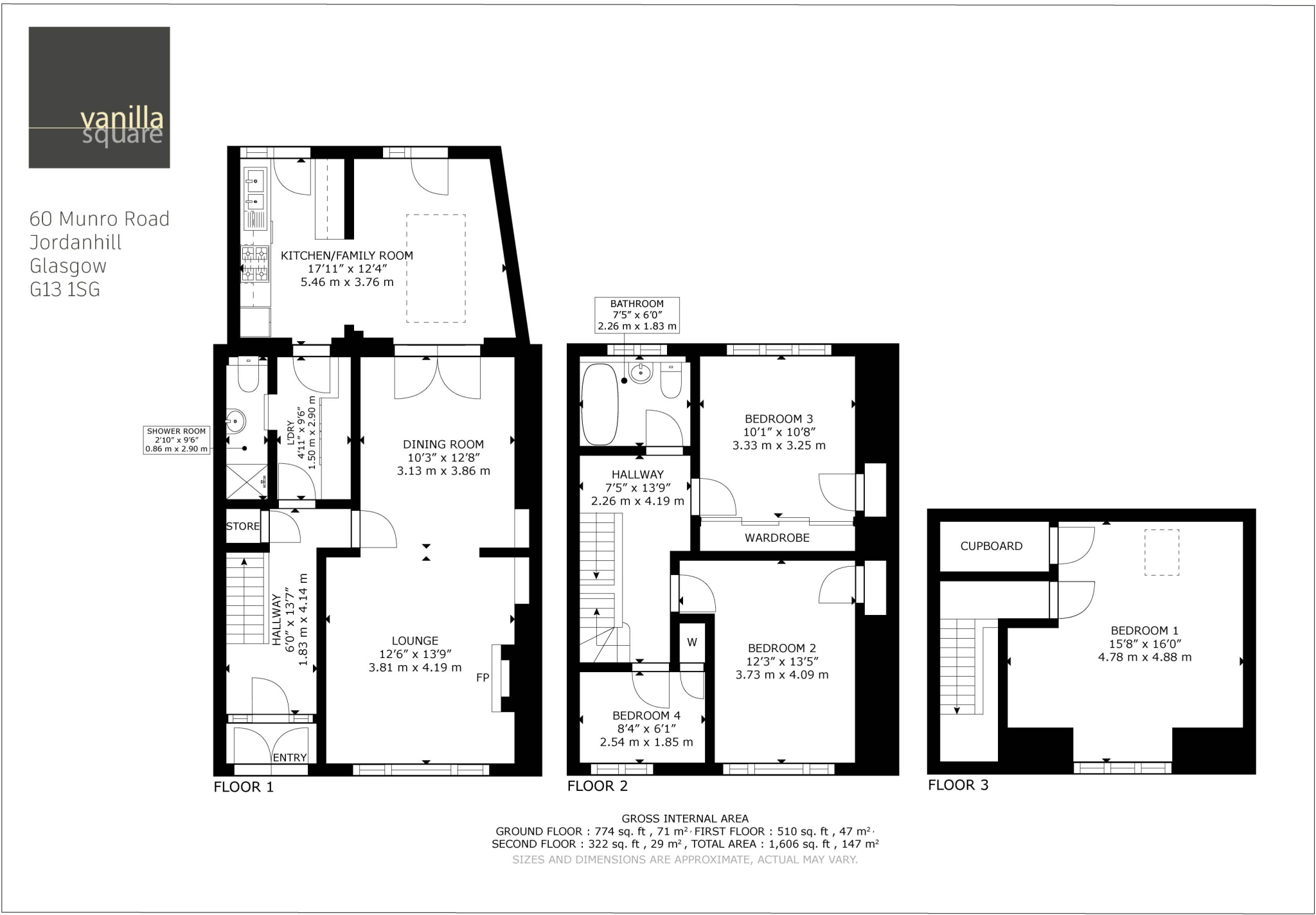
Set over three levels in sought-after Jordanhill, this newly renovated mid-terrace villa provides substantial family accommodation and modern finishes throughout. The extended rear creates a bright kitchen/family room with quartz worktops, integrated appliances and French doors opening onto landscaped gardens — an excellent space for everyday family life and entertaining.

The home offers four bedrooms and two contemporary bathrooms, including a top-floor principal suite with dual-aspect windows and a first-floor bathroom with a standalone bath. A large double-length living room with a gas fireplace and plentiful natural light gives flexible living and dining options, while a practical utility room and newly installed boiler (May 2025) add convenience.

Outside, the rear garden is thoughtfully landscaped with two lawns and two patios; the property also includes a large garage and easy on-street parking. Practical benefits include double glazing, gas central heating, an Energy Efficiency Rating of C and fast broadband with excellent mobile signal.

Important note: the supplied area data indicates high local deprivation, which may affect perceptions and some services despite the property’s location close to Jordanhill School and nearby amenities. The house is freehold, mid-century in style and offers strong potential for families seeking top school catchment access and immediate move-in condition.

Property Details

Image Descriptions

Floorplan Description

Rooms

Textual Property Features

Target Audience

AI Tags

Detected Visual Features

Nearest Bars And Restaurants

,,,,}

Nearest General Shops

,,}

Nearest Grocery shops

,,}

Nearest Supermarkets

,,}

Nearest Religious buildings

,,}

Nearest Medical buildings

,,,}

Nearest Airports

,}

Nearest Leisure Facilities

,,,,}

Nearest Tourist attractions

,,}

Nearest Train stations

,,,,}

Nearest Bus stations and stops

,,,,}

Nearest Hotels

,,}

Tags

Local Market Stats

Similar Properties

Meta

High Res Images

Compatible Images

Low res Images

Thumbnails

Raw Images

High Res Floorplan Images

Compatible Floorplan Images

Low res Floorplan Images

FloorplanImages Thumbnail

Raw Floorplan Images