**Standout Features:**
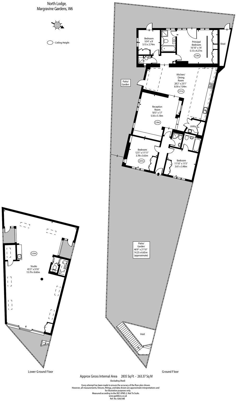
- Detached period cottage with four bedrooms and four bathrooms
- Unique underground basement space with potential for multiple uses
- Gated driveway and off-street parking for added convenience
- Beautiful, landscaped garden
- Planning permission granted for a two-storey rear extension
Discover the charm and versatility of North Lodge, a splendid detached period cottage nestled in the heart of West London. This inviting four-bedroom home offers a bright and airy atmosphere, with two bedrooms featuring their own en-suites and tranquil views of the lush garden. The highlight of this property is the extraordinary basement, over 5 meters deep and thoughtfully soundproofed. It opens up a world of possibilities — imagine transforming it into a home studio, cinema, or gallery. With approximately 2,835 sq ft of space and planning permission in place for an extension, the potential to create your dream home is unparalleled.
An excellent investment opportunity, North Lodge is just seconds from Barons Court station, ensuring easy city travel and access to exceptional local amenities. Experience the comfort and exclusivity this property offers while enjoying proximity to the vibrant community of West Kensington. However, it's essential to be aware that while the home boasts character and modernity, potential buyers should consider any maintenance needs associated with an older building. Don’t miss the chance to make this unique property your own — a home where luxury meets limitless potential.
4 bedroom detached house for sale in Margravine Gardens,
Barons Court, W6 — £3,000,000 • 4 bed • 4 bath • 3118 ft²
4 bedroom detached house for sale in Margravine Gardens, Fulham, London, W6 — £3,000,000 • 4 bed • 5 bath • 3199 ft²
4 bedroom detached house for sale in Margravine Gardens, West Kensington, W6 — £3,000,000 • 4 bed • 4 bath • 2866 ft²
4 bedroom detached house for sale in Margravine Gardens, Barons Court, London, W6 — £3,000,000 • 4 bed • 4 bath • 2889 ft²
4 bedroom house for sale in Oakwood Lane, Kensington, W14 — £3,950,000 • 4 bed • 4 bath • 1832 ft²
5 bedroom house for sale in Greenside Road, Ravenscourt Park, London, W12, United Kingdom, W12 — £3,750,000 • 5 bed • 3 bath • 3293 ft²






















































































































































