Generous three-floor living close to parks, schools and Consett town centre.
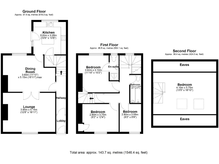
- Four bedrooms across three floors, circa 1560 sq ft
- Master bedroom with en-suite plus family bathroom
- Modern kitchen with island and useful storage cupboard
- Gated rear yard with patio and rear access for parking
- Double glazing fitted post-2002 and mains gas central heating
- EPC rating D; solid brick walls assumed uninsulated
- Potential damp visible on exterior—professional inspection advised
- Small plot; on-street parking available at the front
This substantial four-bedroom terraced house spans three floors and offers flexible family accommodation of approximately 1560 sq ft. The ground floor provides a comfortable lounge, separate dining room and a modern kitchen with island and storage; upstairs there’s a family bathroom, a master bedroom with en-suite, two further first-floor bedrooms and a large bright attic-style fourth bedroom with Velux windows.
Practical features include double glazing (installed post-2002), mains gas central heating with boiler and radiators, a gated yard with patio and access for off-street parking, plus additional on-street parking. Local amenities, good transport links and several well-rated primary and secondary schools are all within easy reach, making this a convenient family location.
Buyers should note some important points: the property has an EPC rating of D and solid brick walls are assumed to be uninsulated, which may affect running costs and could present upgrade work. The exterior images indicate potential damp that should be inspected and there may be maintenance or modernisation required in places. The plot is small and on-street parking is the primary option for some visitors.
Overall, this home suits a family seeking generous, flexible living space near Consett town centre, with scope to improve energy performance and personalise interiors to add long-term value.
4 bedroom terraced house for sale in Roger Street, Blackhill, Consett, Durham, DH8 5SX, DH8 — £160,000 • 4 bed • 2 bath • 1185 ft²
2 bedroom terraced house for sale in Durham Road, Blackhill, Consett, DH8 — £130,000 • 2 bed • 1 bath • 875 ft²
3 bedroom terraced house for sale in Fenwick Way, Consett, Durham, DH8 — £175,000 • 3 bed • 2 bath • 1093 ft²
4 bedroom terraced house for sale in Berry Edge Road, Consett, Durham, DH8 — £170,000 • 4 bed • 3 bath • 1260 ft²
2 bedroom terraced house for sale in Durham Road, Blackhill, Consett, Durham, DH8 — £79,950 • 2 bed • 1 bath • 754 ft²
4 bedroom terraced house for sale in Queens Road, Blackhill, DH8 — £250,000 • 4 bed • 2 bath • 1119 ft²






















































































