**Standout Features:**
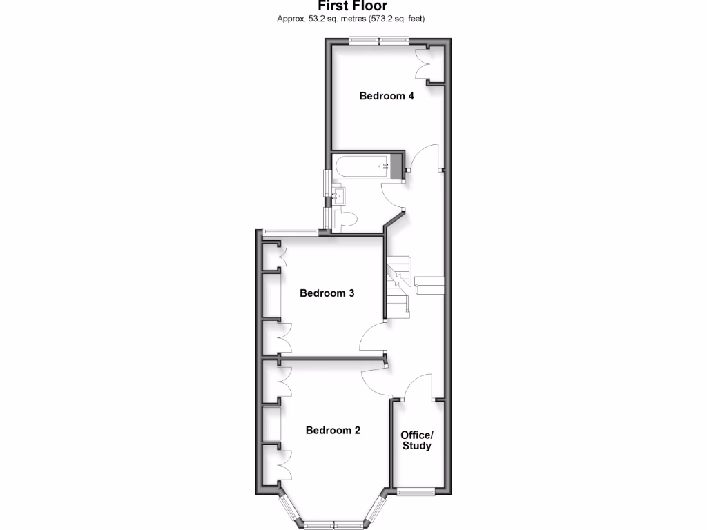
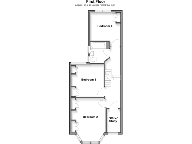
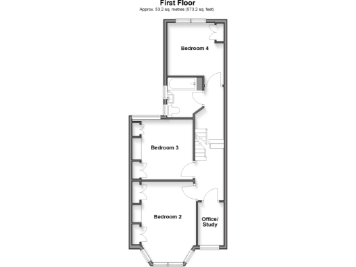
- Spacious 4/5 bedroom terraced family home.
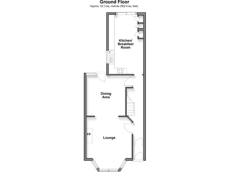
- Lovely sunny rear garden with flat access.
- Extended loft space, enhancing livability.
- Walkable to excellent schools, parks, and Preston Park train station.
- Located in the friendly Fiveways community with local shops and cafés.
- Victorian charm with high ceilings and period features.
**Potential Concerns:**
- Property has solid brick walls, noted as having no insulation (assumed).
- Construction dates back to before 1900; maintenance considerations may apply.
Nestled in the vibrant Fiveways community of Brighton, this beautifully extended 4/5 bedroom terraced house is a prime choice for families and commuters alike. With an inviting sunny garden and flat access to the front and back, this home provides comfort and convenience for all. Enjoy the spacious traditional layout, boasting high ceilings and delightful Victorian features. Excellent schools are within walking distance, making it a great investment for growing families. The property’s proximity to local shops, cafés, and Preston Park train station adds to its appeal, ensuring you stay connected while enjoying a strong community atmosphere.
Although the property's brick structure lacks insulation, the timeless charm and expansion potential offer an opportunity to personalize your dream home. Don’t miss out on the chance to make this welcoming residence your own—properties like this, in such a sought-after area, won’t last long!
4 bedroom end of terrace house for sale in Osborne Road, Brighton, BN1 — £700,000 • 4 bed • 2 bath • 1272 ft²
4 bedroom terraced house for sale in Osborne Road, Brighton, BN1 — £850,000 • 4 bed • 2 bath • 1668 ft²
4 bedroom terraced house for sale in Osborne Road, Brighton, BN1 — £725,000 • 4 bed • 2 bath • 1322 ft²
1 bedroom apartment for sale in Osborne Road, BN1 — £300,000 • 1 bed • 1 bath • 754 ft²
4 bedroom terraced house for sale in Osborne Road, Brighton, BN1 — £675,000 • 4 bed • 2 bath • 1474 ft²
5 bedroom terraced house for sale in Osborne Road, Brighton, BN1 — £675,000 • 5 bed • 2 bath • 1408 ft²


































































































