Generous rooms, parking and easy access to schools and green spaces.
- Detached four-bedroom family house, freehold
- Large overall size: about 2,245 sq ft, 27 rooms approx
- Integral single garage plus driveway parking
- Conservatory, separate dining and large sitting room with bay
- Decent plot with front lawn; scope for landscaping improvements
- Only one family bathroom for four bedrooms
- Very low crime, no flood risk, fast broadband and excellent mobile signal
- Close to primary schools and Coombe Valley nature reserve
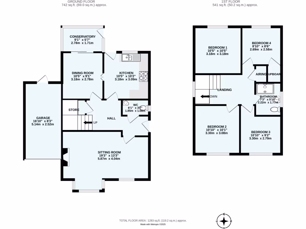
Set on a pleasant street in sought-after Moor View Drive, this detached four-bedroom house offers generous, well‑planned family accommodation across two storeys. The ground floor provides a large sitting room with bay, separate dining room, kitchen, conservatory and internal access to the integral garage, creating a practical layout for everyday family life. The attached garage and driveway deliver secure parking and useful storage.
Upstairs are four bedrooms arranged around a central landing and a single family bathroom. Room sizes are generally average to generous, and the property benefits from a decent plot with front lawn and scope to improve or landscape the garden to suit family outdoor use. Broadband and mobile signal are strong, and the location sits close to schools, local leisure facilities and the nearby Coombe Valley nature reserve.
There are a few practical points to note: the house currently has only one bathroom for four bedrooms, so a growing family may wish to add en suite or a second bathroom. The property is presented as a solid modern family home but offers scope for modest updating in parts and external landscaping if a more contemporary finish is desired. Freehold tenure, very low local crime and no flood risk are positive ownership factors.
This home will suit buyers seeking space, parking and proximity to schooling and green spaces in a very affluent, quiet part of Teignmouth. It presents a comfortable immediate home with straightforward potential to increase convenience and value through selective refurbishment.
4 bedroom end of terrace house for sale in Triumph Place, Teignmouth, Devon, TQ14 — £370,000 • 4 bed • 3 bath • 1206 ft²
4 bedroom detached house for sale in Maudlin Drive, Teignmouth, Devon, TQ14 — £595,000 • 4 bed • 2 bath • 1415 ft²
4 bedroom house for sale in Kingfisher Way, Kingsteignton, TQ12 — £465,000 • 4 bed • 2 bath • 1382 ft²
5 bedroom end of terrace house for sale in Drake Avenue, Teignmouth, Devon, TQ14 — £450,000 • 5 bed • 2 bath • 1334 ft²
4 bedroom detached house for sale in Higher Kingsdown Road, Teignmouth, TQ14 — £435,000 • 4 bed • 2 bath • 1819 ft²
3 bedroom detached house for sale in Sawyer Drive, Teignmouth, TQ14 — £375,000 • 3 bed • 2 bath • 1076 ft²


























































































