S43 3BY - 4 bedroom detached house for sale in Bridle Road, Mastin Mo…

View on Property Piper

4 bedroom detached house for sale in Bridle Road, Mastin Moor, S43

Summary - 9 BRIDLE ROAD WOODTHORPE CHESTERFIELD S43 3BY

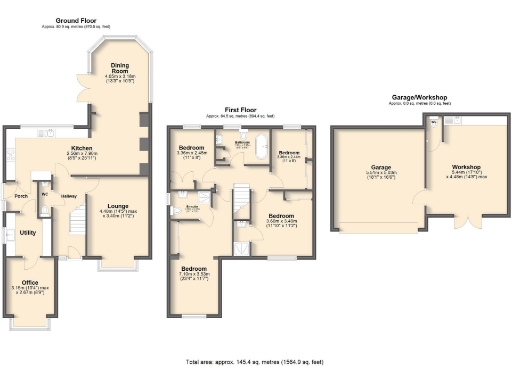
4 bed 2 bath Detached

**Standout Features:**
- Four well-proportioned bedrooms, two of which are en-suite
- Open-plan kitchen/diner with integrated appliances and wood-burning stove
- Office space, utility room, and side porch
- Landscaped garden with patio and lawn
- Detached double garage and workshop
- CCTV, solar panels, and air conditioning throughout
- Excellent parking with a driveway for multiple vehicles
- Energy rating B; chain-free sale

This beautifully appointed four-bedroom detached house in the desirable suburb of Woodthorpe offers a perfect blend of modern living and rural charm. The heart of the home is the expansive open-plan kitchen and dining area, ideal for entertaining and complete with integrated appliances and a cozy snug featuring a wood-burning stove. The well-proportioned bedrooms ensure comfort, with two benefiting from en-suite bathrooms and air conditioning, while ample storage solutions are throughout the home.

Step outside to enjoy your landscaped garden, perfect for relaxing or entertaining, complemented by a detached garage and workshop, providing extensive options for future projects or a home business. Security and sustainability are ensured with CCTV and solar panels, offering peace of mind and energy efficiency.

Situated in a location with excellent connections to local amenities, schools, and green spaces, this property is perfect for families or anyone seeking a peaceful lifestyle with modern conveniences. With a competitive price of £500,000, be quick to seize the opportunity for a home that balances comfort, style, and future potential. Don’t miss out on your chance to make this charming property your own!

Property Details

Image Descriptions

Rooms

Textual Property Features

Detected Visual Features

EPC Details

Nearby Schools

Nearest Bars And Restaurants

,,,,}

Nearest General Shops

,,}

Nearest Grocery shops

,,}

Nearest Supermarkets

,,}

Nearest Religious buildings

,,}

Nearest Medical buildings

,,,}

Nearest Airports

}

Nearest Leisure Facilities

,,,,}

Nearest Tourist attractions

,,}

Nearest Train stations

,,,,}

Nearest Bus stations and stops

,,,,}

Nearest Hotels

,,}

Tags

Local Market Stats

AirBnB Data

Similar Properties

Meta

High Res Images

Compatible Images

Low res Images

Thumbnails

Raw Images

High Res Floorplan Images

Compatible Floorplan Images

Low res Floorplan Images

FloorplanImages Thumbnail

Raw Floorplan Images