**Standout Features:**
- Chain-free sale, ideal for quick possession
- Bright and airy Victorian conversion flat
- Private garden perfect for relaxation or gardening
- Recently redecorated with natural lighting throughout
- Close proximity to Forest Hill Station (4-minute walk)
- Extended lease of 174 years
- Low council tax band and affordable service charges
**Concise Overview:**
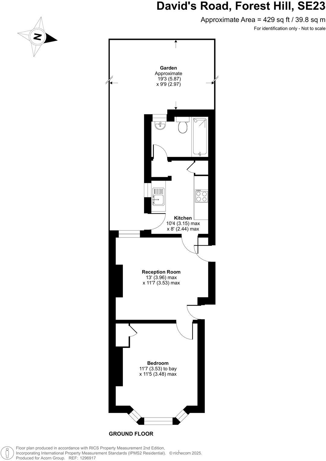
Discover this charming chain-free Victorian conversion flat in the heart of Forest Hill, offering a unique blend of light, comfort, and convenience. The flat features a spacious reception area, a fully-fitted kitchen with modern appliances, a cozy bedroom, and your very own private garden — a rare find for urban living. Recently refreshed, this 1-bedroom apartment provides a welcoming retreat while being just a short stroll from transport links and local amenities, including trendy cafes, supermarkets, and the beautiful Horniman Museum & Gardens.
With an approximate size of 429 square feet and located in a cosmopolitan part of London, this flat is an excellent option for first-time buyers or investors looking for rental potential. The area boasts good schools and affordable council tax rates, enhancing its family-friendly appeal. While the property is in solid condition, it features solid brick walls without insulation; however, this can offer renovation flexibility for energy efficiency upgrades. Don’t miss the chance to secure this delightful home in a sought-after location; schedule your viewing today!
1 bedroom flat for sale in Sunderland Road, SE23 — £375,000 • 1 bed • 1 bath • 448 ft²
3 bedroom flat for sale in Waldenshaw Road, Forest Hill, London, SE23 — £625,000 • 3 bed • 1 bath • 860 ft²
1 bedroom apartment for sale in Forest Hill Road, London, SE22 — £375,000 • 1 bed • 1 bath • 630 ft²
4 bedroom apartment for sale in David's Road, London, SE23 — £499,995 • 4 bed • 1 bath • 1044 ft²
1 bedroom flat for sale in David's Road, Forest Hill, London, SE23 — £295,000 • 1 bed • 1 bath • 517 ft²
1 bedroom flat for sale in Forest Hill Road, Forest Hill, SE23 — £295,000 • 1 bed • 1 bath • 344 ft²






































































