Large rear garden with strong extension potential for growing families.
No onward chain — vacant sale ready
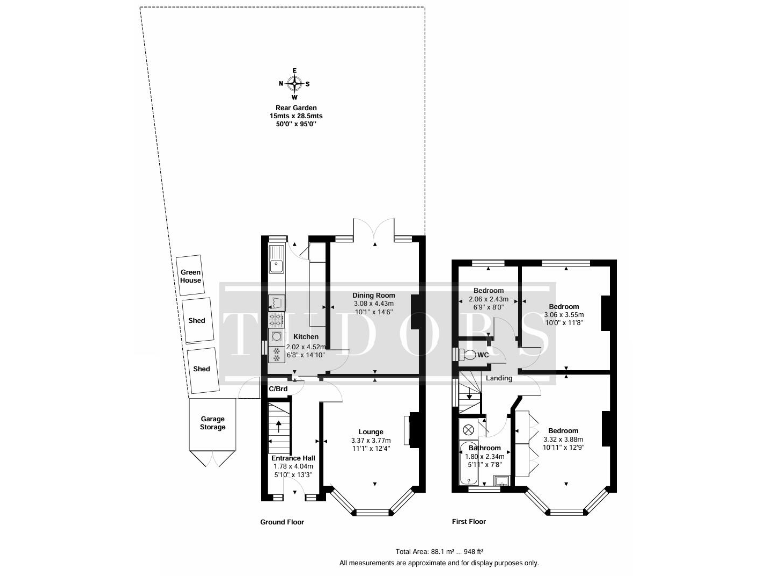
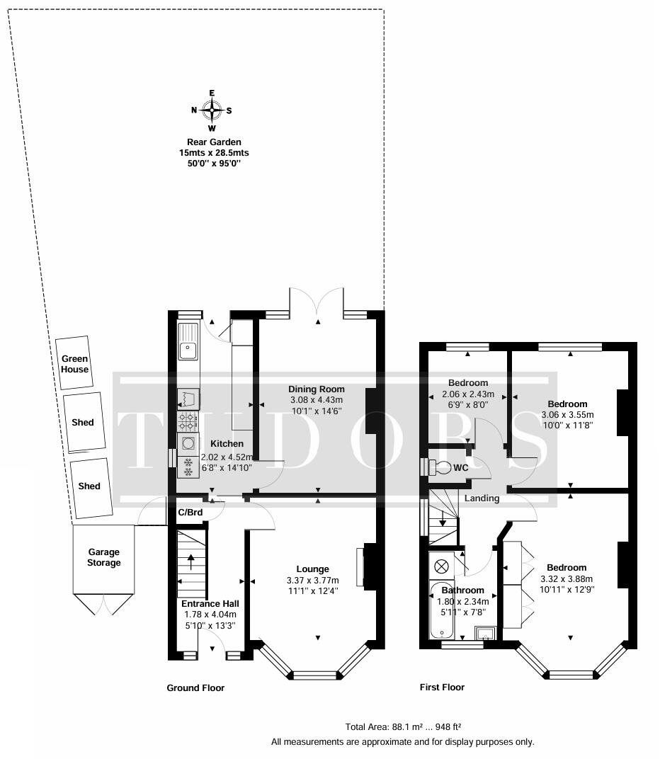
This mock-Tudor three-bedroom semi-detached house sits on a notably large 95ft x 50ft rear plot and is offered with no onward chain. Built in the 1930s and retained by the same family for decades, the property retains period features such as a bay-windowed front reception, original balustrade and leaded window, but requires modernisation throughout. Its compact internal footprint (approximately 814 sq ft) means accommodation is cosy rather than spacious.
The home's strengths are the oversized rear garden, detached garage with driveway parking and scope to extend subject to planning permission (neighbouring properties have extended). Two reception rooms (one with French doors to the garden), a galley kitchen, three bedrooms, a bathroom and separate WC give a practical layout for a family looking to improve and personalise. Double glazing is already installed.
Buyers should note the material considerations: the house needs renovation, internal living space is modest, and council tax is above average (Band E). These factors are balanced by excellent local amenities — riverside towpath and Hurst Park nearby, good primary schools within walking distance, reliable transport links and low local crime. The property suits purchasers seeking a period home with a large garden and renovation potential rather than someone seeking a fully updated move-in ready house.
3 bedroom semi-detached house for sale in Molesham Way, West Molesey, KT8 — £650,000 • 3 bed • 1 bath • 1045 ft²
3 bedroom semi-detached house for sale in Berkeley Drive, West Molesey, KT8 — £650,000 • 3 bed • 1 bath • 1015 ft²
3 bedroom detached house for sale in Hurst Road, West Molesey, KT8 — £750,000 • 3 bed • 2 bath • 1352 ft²
4 bedroom semi-detached house for sale in Spreighton Road, West Molesey, KT8 — £675,000 • 4 bed • 2 bath • 1054 ft²
3 bedroom semi-detached house for sale in Summer Avenue, East Molesey, KT8 — £875,000 • 3 bed • 1 bath • 926 ft²
3 bedroom semi-detached house for sale in The Crescent, West Molesey, KT8 — £699,950 • 3 bed • 2 bath • 1149 ft²










































