**Standout Features:**
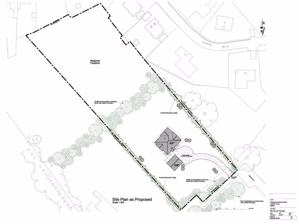
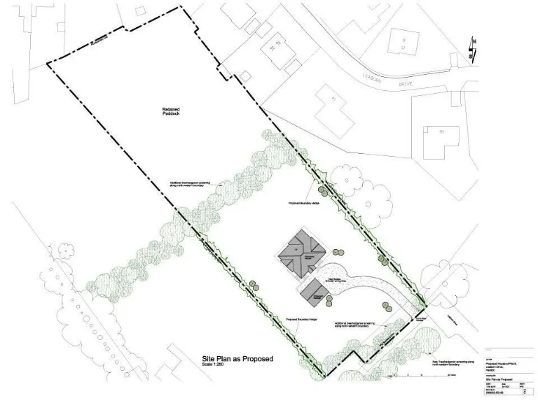
- Large building plot of approximately 1.6 acres
- Elevated position with stunning panoramic views
- Full planning permission for a 4-bedroom detached home (Planning Reference Number 22/00943/FUL approved February 2023)
- Ample grounds suitable for gardens or equestrian use
- Excellent mobile signal and fast broadband access
- Close proximity to countryside walks, trails, and town center amenities
This expansive 1.6-acre building plot in an elevated location on Leaburn Drive, Hawick, presents a unique opportunity to create your dream home surrounded by breathtaking views of both the town and the scenic countryside. With full planning permission secured for a stylish 4-bedroom detached detached dwelling, designed to include generous living spaces and extensive outdoor areas, this property is perfect for families or equestrian enthusiasts alike. Enjoy the serenity of rural living while remaining within a short walk to essential amenities and vibrant community life.
While the plot is currently empty, it offers significant investment potential with room for customization and personal touches. All mains services are located nearby, providing a convenient foundation for your future build. Whether you're looking to establish a family home or a peaceful retreat, this unique piece of land is a rare find that combines both exclusivity and accessibility in equal measure. Don’t miss the chance to secure this prime development opportunity!
Land for sale in Plot 5, Leaburn Drive, Hawick, TD9 9NZ, TD9 — £85,000 • 1 bed • 1 bath
Land for sale in Land South Of Greenfields, 43 Liddesdale Road, Hawick, TD9 0EP, TD9 — £55,000 • 1 bed • 1 bath
Plot for sale in Plot 6, Heronhill Close, Hawick, TD9 9RA, TD9 — £110,000 • 1 bed • 1 bath • 482 ft²
Plot for sale in Residential Plot, 12 Hislop Gardens, Hawick, Scottish Borders, TD9 — £45,000 • 1 bed • 1 bath
Land for sale in Plot at 17 Burnflat Brae, Hawick , TD9 0DZ, TD9 — £70,000 • 1 bed • 1 bath
Plot for sale in Land at Heronhill Close, Hawick, TD9 — £30,000 • 1 bed • 1 bath






















































