Compact modern apartment ideal for first-time buyers or buy-to-let investors.
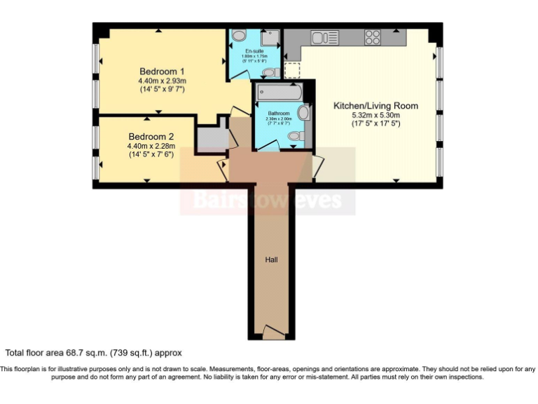
First-floor two-bedroom apartment with en suite to main bedroom
Open-plan living room and fitted kitchen, full-width windows
Lift access and town-centre location; immediate shops and transport
Leasehold: approximately 93 years remaining
Service charge circa £1,700 per year; ground rent £600 per year
Heating via electric room heaters (no gas central heating)
Very high local crime level; area classified as deprived
Very slow broadband speeds; scaffolding visible externally
Set on the first floor of a modern block, this two-bedroom flat offers bright, open-plan living with full-width windows and contemporary finishes. The main bedroom includes an en suite; a second double and family bathroom complete practical accommodation for first-time buyers or a rental investment.
The apartment benefits from lift access, town-centre convenience and immediate access to shops, cafes and public transport. The interior shows clean, neutral styling with laminate wood floors and integrated kitchen appliances, making it easy to move into or re-let quickly.
Important practical points: the property is leasehold with about 93 years remaining, a service charge around £1,700pa and a ground rent of £600pa. Heating is by electric room heaters rather than gas central heating, and broadband speeds in the area are reported as very slow.
Location comes with trade-offs: the immediate area is classified as deprived with very high local crime levels, and scaffolding is visible externally in photos. There is no private outdoor space. These factors affect suitability for families and will be important for buyers weighing commute, safety and rental yield.
2 bedroom flat for sale in St. Peters Street, Maidstone, Kent, ME16 — £190,000 • 2 bed • 2 bath • 832 ft²
2 bedroom flat for sale in St. Peters Street, Maidstone, Kent, ME16 — £190,000 • 2 bed • 2 bath • 832 ft²
2 bedroom apartment for sale in Romney Place, MAIDSTONE, ME15 — £200,000 • 2 bed • 2 bath • 808 ft²
2 bedroom apartment for sale in Lower Stone Street, Maidstone, ME15 — £90,000 • 2 bed • 1 bath • 603 ft²
2 bedroom flat for sale in McKenzie Court, Maidstone, Kent, ME14 — £190,000 • 2 bed • 2 bath • 586 ft²
1 bedroom flat for sale in Romney Place, Maidstone, Kent, ME15 — £140,000 • 1 bed • 2 bath • 360 ft²






















































