Planning consent for 3-bed detached house (2,159 ft² / 201 m²)\nExpansive 1.97-acre plot with paddock and farmland views\nMains water and electricity connected; shared private septic tank\nPotential CIL charge £108,955.97; consent expires 12/12/2026\nPart of site includes four let caravans with lawful use certificate\nDrainage may require upgrade to meet current regulations\nRemote hamlet location; slow broadband, average mobile signal\nArea of Outstanding Natural Beauty location with coastal access
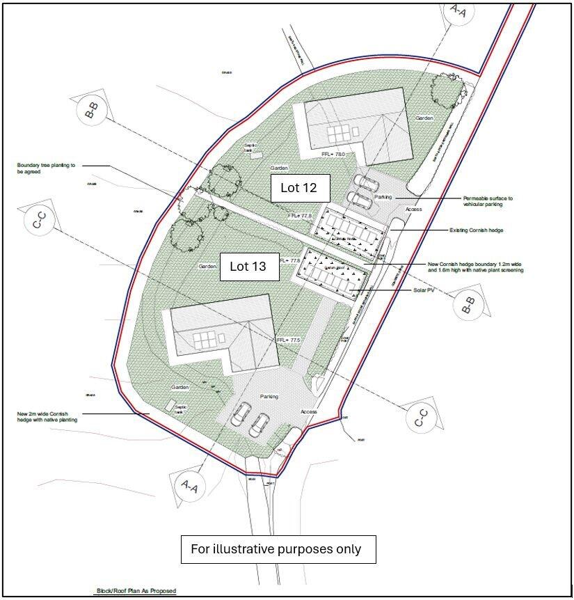
This substantial 1.97-acre plot at Trewothack Farm comes with secured planning consent for a sizeable 3-bedroom detached house (2,159 ft² / 201 m²), offering open-plan living and three ensuite bedrooms. Set in an elevated rural location on the Lizard Peninsula, the site benefits from far-reaching farmland and coastal-adjacent views within the Cornwall Area of Outstanding Natural Beauty. Mains water and electricity are connected; a shared private septic tank serves the plot.
The consented layout delivers generous family accommodation across two floors: open-plan lounge/kitchen/dining, utility and three additional ground-floor reception rooms, with three ensuite bedrooms and a family bathroom upstairs. The large paddock/field corner and nearly two acres give scope for gardens, equestrian use or extensive outdoor amenity. The site forms part of a wider holding that includes four let caravans and existing lawful use for those units.
Material considerations are clear and should be budgeted for: the planning consent carries a potential CIL charge of £108,955.97 and expires on 12/12/2026. Drainage is via a shared septic tank which may not meet current regulations, so replacement or upgrade works could be required. Purchasers should also allow for rights-of-way, shared services and any wayleaves or covenants affecting the plot.
This plot will suit a buyer seeking a substantial rural new-build opportunity — an owner-occupier wanting space and views, or an investor/developer able to manage CIL and drainage compliance. Due diligence on planning, access arrangements and shared service obligations is recommended before committing.



























