Move straight in to upgraded rooms and a sunny rear garden.
Chain-free three-bedroom semi, move-in ready
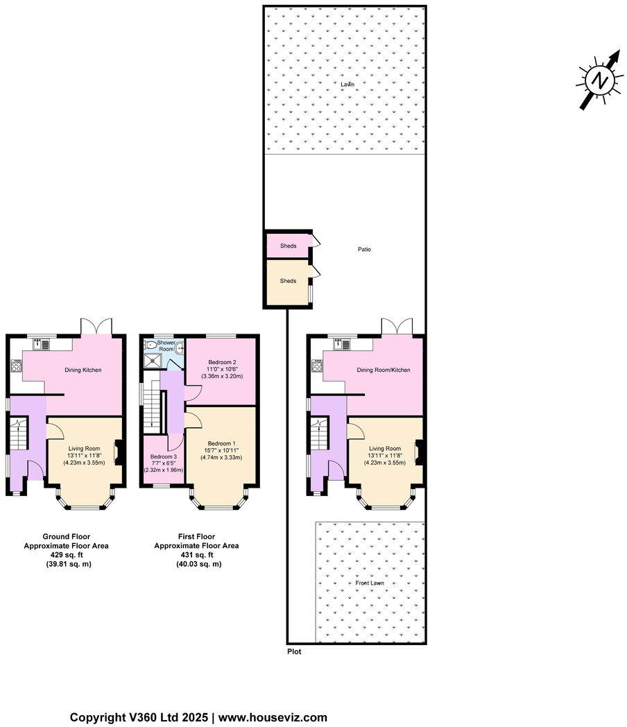
A recently renovated three-bedroom semi offers move-in-ready accommodation ideal for first-time buyers. Upgrades include a new shaker-style kitchen, stylish shower room, full re-wire, new flooring and neutral décor throughout, so you can unpack and settle quickly. The bright living room’s bay window looks out across open fields and the dining kitchen opens directly to a sunny rear garden with brick-built outhouses.
Practical strengths include mains gas central heating, double glazing, loft-mounted combi boiler and decent plot size with scope to create a driveway (subject to planning). Local amenities are strong: good schools (including several rated Outstanding), nearby shops, parks, rail links and quick access to the M53, making commutes and family life straightforward.
Be aware of a few material points: the property dates from the 1930s and cavity walls are assumed to lack insulation, the EPC rating is currently TBC, and there is only one shower room. Any new driveway conversion would require planning approval. Appliances and services have not been independently tested, so buyers wanting confirmation of mechanical or electrical performance should commission specialist reports.
Overall this freehold home combines period charm and modern finishes with sensible scope for improvement — a practical, low-hassle entry to the local market for buyers wanting a refurbished, chain-free purchase with good local schools and transport links.
3 bedroom semi-detached house for sale in Glenmarsh Close, High Bebington, CH63 — £250,000 • 3 bed • 1 bath • 936 ft²
3 bedroom end of terrace house for sale in Rosefield Avenue, Bebington, CH63 — £230,000 • 3 bed • 1 bath • 775 ft²
3 bedroom semi-detached house for sale in Bramley Avenue, Higher Bebington, Wirral, CH63 — £270,000 • 3 bed • 1 bath • 1039 ft²
3 bedroom semi-detached house for sale in Withert Avenue, Higher Bebington, Wirral, CH63 — £280,000 • 3 bed • 1 bath • 997 ft²
3 bedroom semi-detached house for sale in Fairacres Road, Bebington, CH63 — £270,000 • 3 bed • 1 bath • 1023 ft²
3 bedroom semi-detached house for sale in Ffrancon Drive, Bebington, Wirral, CH63 — £250,000 • 3 bed • 1 bath • 1391 ft²


































































































