Characterful family home with parking and close river walks and station.
Bay-fronted Victorian end-terrace with high ceilings and sash windows
Four good-sized bedrooms across three floors, versatile reception rooms
Off-street forecourt parking — rare for this area
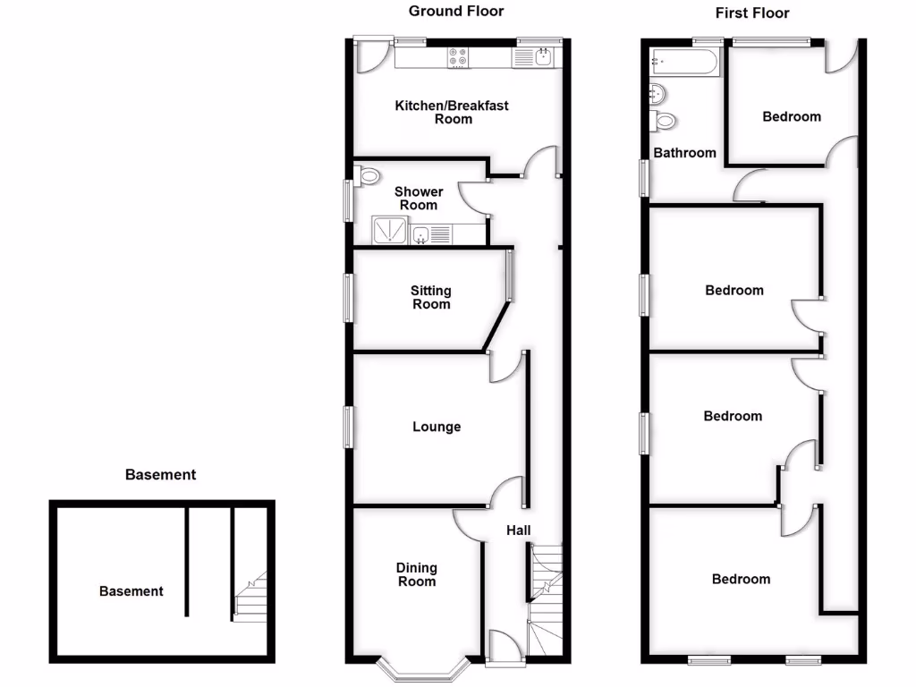
Cellar offers conversion potential (subject to consents)
Only one bathroom for four bedrooms — may need upgrading
Solid brick walls assumed uninsulated — consider thermal improvements
Small rear garden and modest plot size
Local area records higher-than-average crime rates
This attractive four-bedroom bay-fronted period end-terrace offers well-proportioned living across three floors, with many original features such as sash windows, high ceilings and exposed timber floors. The property benefits from a rare forecourt off-street parking area, enclosed front and rear gardens and a useful cellar that could be converted subject to planning and building regs.
The ground floor provides versatile reception space — lounge, bay-fronted dining room and a separate sitting room — plus a long kitchen/breakfast room and a utility with shower and WC. Upstairs are four good-sized bedrooms and a single family bathroom; the layout suits a growing family or a buy-to-let investor seeking strong central demand and easy access to local amenities and transport links.
Buyers should note some material points: the house is of solid brick construction with no original wall insulation assumed, which can mean higher heating costs unless upgraded. There is only one bathroom servicing four bedrooms. The area records higher-than-average crime, which should be considered alongside the convenience of city-centre location and excellent mobile/broadband connectivity.
Overall, this period town house combines spacious rooms, character details and commuter-friendly location with clear scope for improvement and potential value added by sympathetic insulation, refit or cellar conversion. Early viewing is recommended to appreciate the layout, parking and proximity to riverside walks and Shrewsbury town centre.
4 bedroom end of terrace house for sale in West Street, Shrewsbury, SY1 — £400,000 • 4 bed • 2 bath • 1603 ft²
4 bedroom detached house for sale in 23 Bynner Street, Belle Vue, Shrewsbury SY3 7PB, SY3 — £575,000 • 4 bed • 2 bath • 1500 ft²
4 bedroom house for sale in 85 Bishop Street, Shrewsbury, SY2 5EZ, SY2 — £369,995 • 4 bed • 1 bath • 1597 ft²
4 bedroom terraced house for sale in Copthorne Road, Shrewsbury, SY3 — £375,000 • 4 bed • 2 bath • 1320 ft²
4 bedroom terraced house for sale in West Street, Castlefields, Shrewsbury, SY1 2JN, SY1 — £400,000 • 4 bed • 2 bath
2 bedroom terraced house for sale in 25 Benyon Street, Shrewsbury, SY1 2JQ, SY1 — £275,000 • 2 bed • 1 bath • 872 ft²














































































































