B17 9TL - 1 bed harborne one bedroom flat in Barons Close, B17 9TL

View on Property Piper

1 bedroom flat for sale in Barons Close, Birmingham, B17

Summary - BLENHEIM COURT, 46 FLAT 5 BARONS CLOSE BIRMINGHAM B17 9TL

1 bed 1 bath Flat

Newly renovated one-bed with garage, balcony and long lease in Harborne.
Share of freehold with a 975-year lease remaining
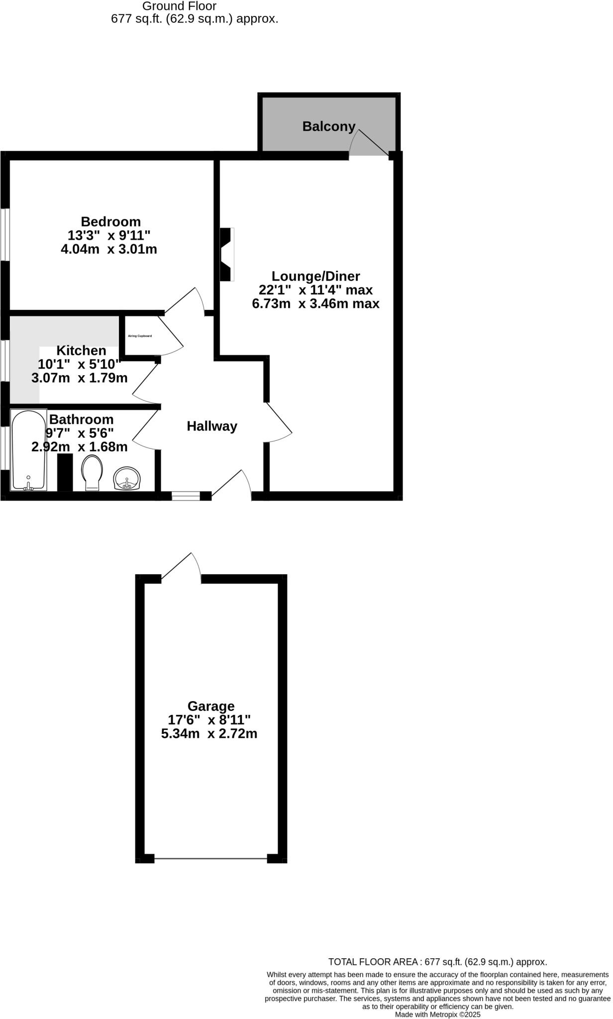
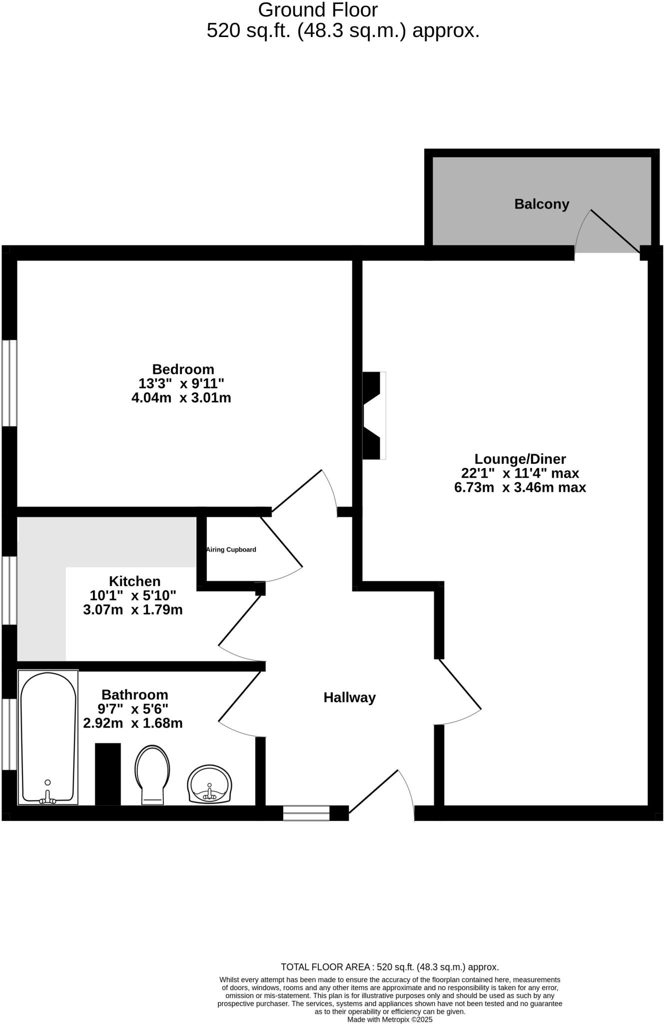
A smartly presented upper-floor one-bedroom apartment with a share of the freehold and an exceptionally long lease (975 years). The accommodation has been newly renovated throughout and benefits from a generous lounge/dining room that opens onto a balcony, a modern fitted kitchen, sleek bathroom with shower, and an included garage — useful for storage or parking.

Practical running notes are straightforward: the property uses electric heating via room heaters and double glazing is fitted. Service charges are approximately £2,280 per year (circa £190 pcm) and council tax is moderate. At about 494 sq ft the flat is a comfortable size for a single occupant or couple, but storage and living space are modest compared with larger homes.

Location is a key strength. Set in a well-kept mid-20th-century development in Harborne with easy access to Birmingham University, QE Hospital, local shops and regular buses into the city centre. Communal gardens, parking and an en bloc garage add everyday convenience. Broadband speeds are listed as fast and there is no flooding risk.

This apartment will suit a first-time buyer or buy-to-let investor seeking a ready-to-move-into home in a popular inner-city area. Be aware of the electric heating system (no gas central heating) and the ongoing service charge when assessing running costs, but the long lease and share of freehold remove typical leasehold concerns.

Property Details

Image Descriptions

Floorplan Description

Rooms

Textual Property Features

Target Audience

AI Tags

Detected Visual Features

EPC Details

Nearby Schools

Nearest Bars And Restaurants

,,,,}

Nearest General Shops

,,}

Nearest Grocery shops

,,}

Nearest Supermarkets

,,}

Nearest Religious buildings

,,}

Nearest Medical buildings

,,,}

Nearest Airports

}

Nearest Leisure Facilities

,,,,}

Nearest Tourist attractions

,,}

Nearest Train stations

,,,,}

Nearest Bus stations and stops

,,,,}

Nearest Hotels

,,}

Tags

Local Market Stats

AirBnB Data

Similar Properties

Meta

High Res Images

Compatible Images

Low res Images

Thumbnails

Raw Images

High Res Floorplan Images

Compatible Floorplan Images

Low res Floorplan Images

FloorplanImages Thumbnail

Raw Floorplan Images