**Standout Features:**
- Semi-detached Victorian house currently configured as two flats
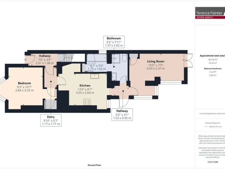
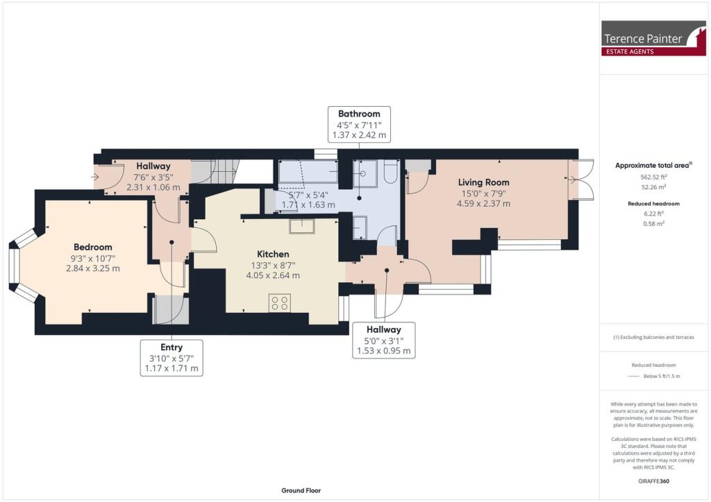
- Ground floor one-bedroom flat with stylish kitchen and private garden
- Upper two-bedroom flat with en-suite shower and private garden
- Convenient local amenities and schools nearby
- Flexibility to revert to a single-family home
- Off-street parking for one vehicle
- Chain free and well presented
**Summary:**
Discover this exceptional semi-detached Victorian house in Broadstairs, currently organized as two well-appointed flats, ideal for either investment or comfortable family living. The ground floor hosts a charming one-bedroom flat, featuring a modern kitchen, a bright living room that opens to a private garden, and a stylish bathroom with both a bath and a separate shower. Above, the spacious two-bedroom flat encompasses a generous living room, fitted kitchen, and an en-suite to the principal bedroom, promising a cozy ambiance and additional privacy. Each flat benefits from separate garden spaces for outdoor relaxation.
Perfectly situated near local shops, schools, and the railway station, this property not only offers convenience but also great potential—whether you wish to maintain it as two independent dwellings or revert it back into a sprawling family home. With a price of £399,950 and no forward chain, this investment opportunity is ready for you to make it your own. Don’t miss out on this chance to secure a substantial property in a sought-after area!
Residential development for sale in Osborne Road, Broadstairs, Kent, CT10 — £399,950 • 3 bed • 3 bath • 372 ft²
4 bedroom semi-detached house for sale in Osborne Road, Broadstairs, Kent, CT10 — £380,000 • 4 bed • 1 bath • 1599 ft²
4 bedroom semi-detached house for sale in The Vale, Broadstairs, Kent, CT10 — £500,000 • 4 bed • 2 bath • 1755 ft²
5 bedroom detached house for sale in St. Peters Road, Broadstairs, CT10 2AQ, CT10 — £729,995 • 5 bed • 3 bath • 2038 ft²
1 bedroom flat for sale in Inverness Terrace, Broadstairs, CT10 — £225,000 • 1 bed • 1 bath • 582 ft²
4 bedroom semi-detached house for sale in Rectory Road, Broadstairs, Kent, CT10 — £700,000 • 4 bed • 2 bath • 1658 ft²






















































































