Compact, low-maintenance house ideal for first-time buyers or investors.
Newly renovated throughout, ready to move into
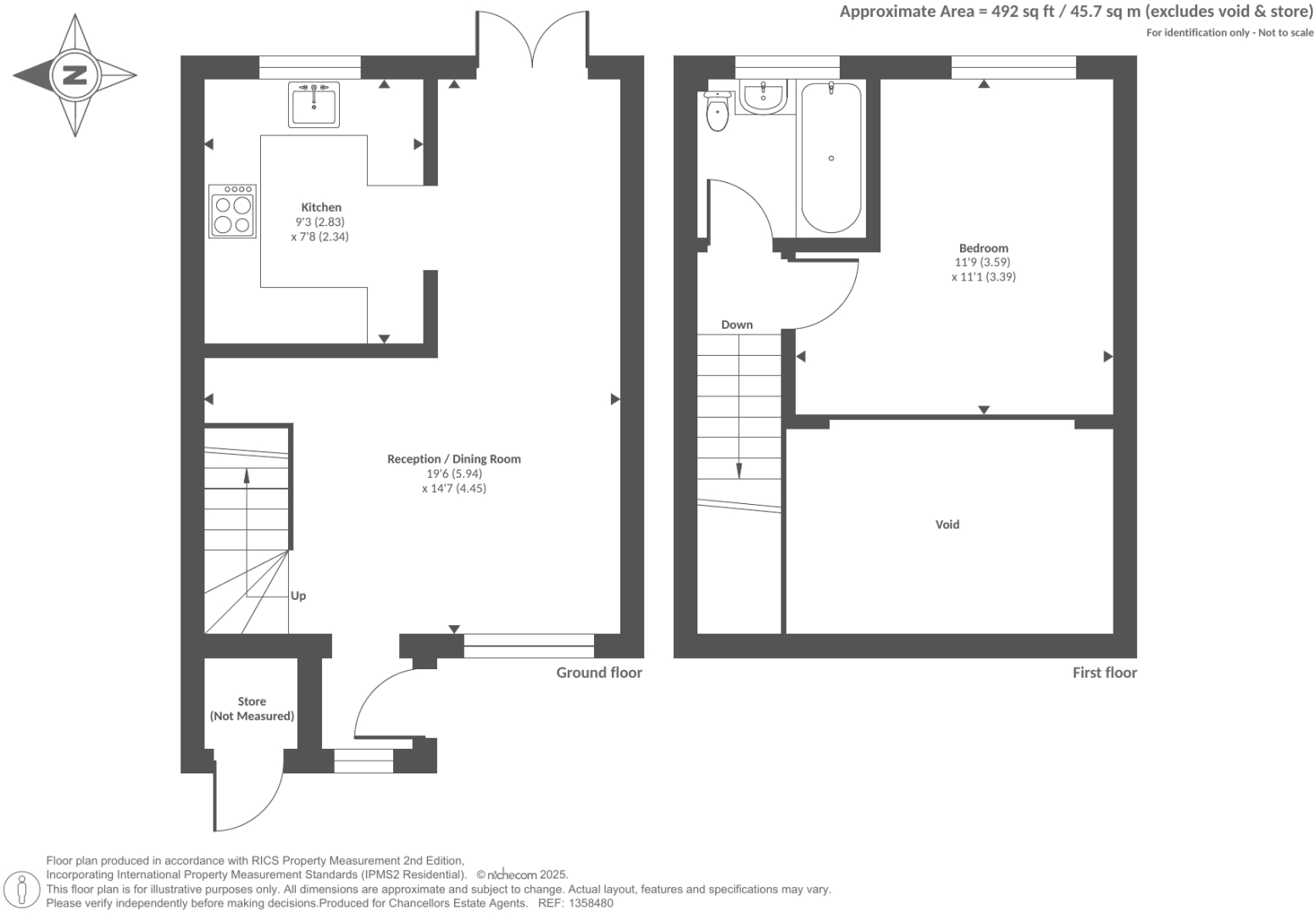
A neatly presented one-bedroom end-terrace finished to a modern standard and ready to move into. The layout uses its 492 sqft efficiently, with a mezzanine landing that adds useful storage or a small home workspace above the living area. The kitchen is contemporary with integrated appliances and stone-style flooring, and the property benefits from gas central heating and double glazing.
Outside, the private rear garden combines a lawn and decking for low-maintenance outdoor living, and there is off-street parking directly to the front. The house sits in a quiet town-fringe location with fast broadband, excellent mobile signal, low crime and several highly rated schools nearby — appealing for first-time buyers or buy-to-let investors seeking a turnkey single-bedroom home.
Buyers should note the compact overall size (approximately 492 sqft) and single-bedroom accommodation; the plot is small and suits those not needing extensive indoor space. Double glazing is installed but the fitment date is unknown. While recently renovated and well cared for, purchasers should check any specific mechanical or electrical warranties if proceeding from video-only viewings.
This freehold property presents a straightforward ownership proposition: modern fixtures, manageable running costs and convenient local amenities. It will suit someone prioritising low-maintenance living, proximity to schools and transport links, or investors seeking a centrally located rental with solid local demand.
1 bedroom end of terrace house for sale in Hawkswell Walk, Woking, Surrey, GU21 — £270,000 • 1 bed • 1 bath • 452 ft²
1 bedroom end of terrace house for sale in Maguire Drive, Frimley, Camberley, Surrey, GU16 — £250,000 • 1 bed • 1 bath • 325 ft²
1 bedroom terraced house for sale in Lingwood, Bracknell, Berkshire, RG12 — £285,000 • 1 bed • 1 bath • 720 ft²
1 bedroom end of terrace house for sale in Bowers Close, Burpham, Guildford, Surrey, GU4 — £275,000 • 1 bed • 1 bath • 437 ft²
2 bedroom terraced house for sale in Rainbow Court, Woking, Surrey, GU21 — £365,000 • 2 bed • 1 bath • 818 ft²
1 bedroom end of terrace house for sale in Medhurst Close, Chobham, Woking, GU24 — £269,950 • 1 bed • 1 bath • 336 ft²






















































































