Two double bedrooms, principal with en‑suite shower
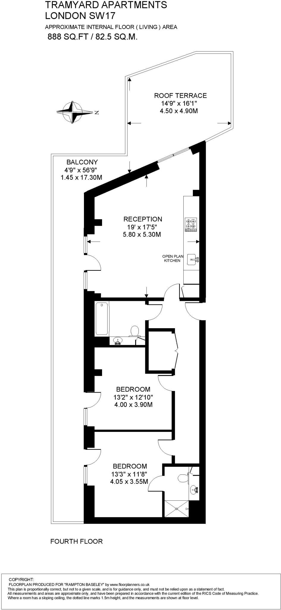
A bright, modern two-bedroom apartment on the fourth floor of Tramyard Apartments, offering a generous open-plan reception and private outdoor space. The living area opens onto a long south-facing balcony and a separate south‑west roof terrace, delivering excellent light and elevated city views — rare for a central Balham flat. Both bedrooms are double-size, the principal bedroom has an en‑suite shower, and there is a separate family bathroom.
Built as a contemporary development, the apartment is well presented throughout with integrated kitchen appliances, wood-effect flooring and recessed lighting. The property benefits from a communal courtyard and very good local transport links — Balham Overground and Underground stations are within easy walking distance, plus shops, cafés and green spaces nearby. The long lease (c. 992 years) makes this a straightforward purchase for owner-occupiers or buy-to-let investors.
Practical points to note: the property is leasehold and heated via a community heating scheme, and the area records above-average local crime levels — worth factoring into insurance or rental considerations. The apartment sits on the fourth floor (access arrangements not specified) and offers medium overall internal space for a two-bedroom flat, with particularly strong outdoor amenity via the roof terrace.
Overall this apartment will suit buyers seeking a contemporary, low-maintenance London home with private outdoor space and excellent transport and amenity access — or investors targeting strong rental demand in Balham.











































