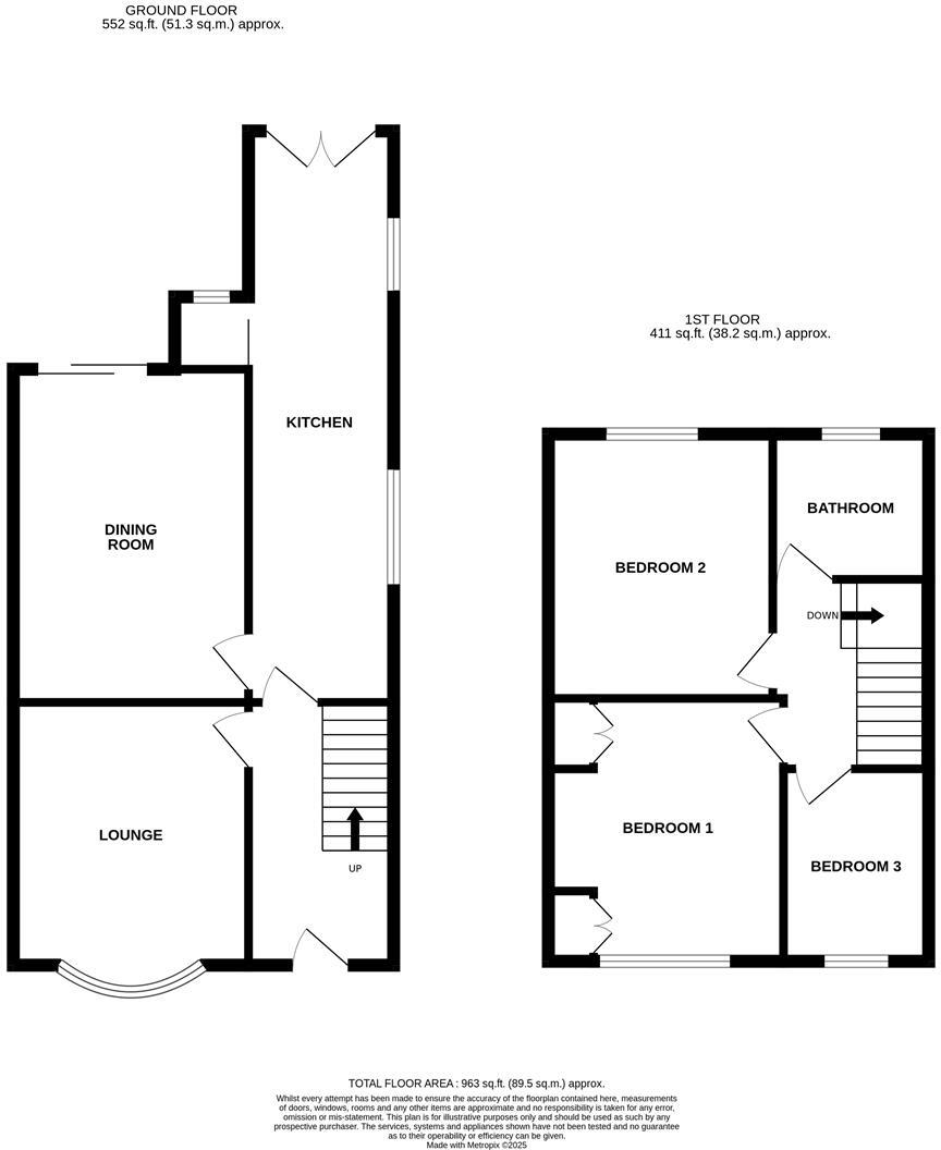
**Standout Features:**
- Traditional semi-detached home with Victorian period character
- Three bedrooms and two spacious reception rooms
- Galley-style kitchen, an impressive 8 meters long
- Good-sized garden with a decked patio and greenhouse
- Ample off-road parking with a block-paved driveway
- Conveniently located near central Grimsby and Cleethorpes, in a popular school catchment area
- Chain-free sale
**Summary:**
Discover this charming three-bedroom semi-detached home, perfectly positioned for families seeking a mix of comfort and convenience. Inside, you'll find a bright bay-fronted lounge that invites you in, accompanied by a separate dining room with patio doors that seamlessly connect to the garden, making it ideal for entertaining. The extensive galley kitchen, approximately 8 meters long, provides ample cooking space and features modern amenities, setting a perfect stage for culinary creativity.
The first floor accommodates two generously sized double bedrooms alongside a versatile third bedroom, ideal for a child's room or home office. The family bathroom offers essential functionality. Outside, the well-maintained rear garden features decking, a lawn, and a greenhouse, creating a cozy outdoor retreat for relaxation or family gatherings. With no ongoing chain and a property that presents significant potential for modernisation, this home represents an excellent opportunity in a sought-after school catchment area. Act quickly—properties like this don't stay on the market for long!
3 bedroom semi-detached house for sale in Laceby Road, Grimsby, Lincolnshire, DN34 — £190,000 • 3 bed • 1 bath • 1389 ft²
3 bedroom terraced house for sale in Columbia Road, Grimsby, DN32 — £95,000 • 3 bed • 1 bath • 970 ft²
3 bedroom semi-detached house for sale in Clee Road, Grimsby, DN32 — £249,000 • 3 bed • 1 bath • 1626 ft²
3 bedroom semi-detached house for sale in Augusta Street, Grimsby, Lincolnshire, DN34 — £240,000 • 3 bed • 1 bath • 1154 ft²
3 bedroom terraced house for sale in Huddleston Road, Grimsby, DN32 — £124,950 • 3 bed • 1 bath • 779 ft²
3 bedroom semi-detached house for sale in Grimsby Road, Humberston, Grimsby, Lincolnshire, DN36 — £199,950 • 3 bed • 1 bath






































































































