**Standout Features:**
- Charming freehold terrace house in a quiet, leafy cul-de-sac
- Chain-free sale, ready for immediate occupancy
- Lovely sun-trap garden perfect for relaxation and gatherings
- Abundant local amenities including parks, restaurants, and shops
- Close proximity to the Elizabeth Line for easy commuting
- Front garden with driveway and separate garage
- Family-friendly with excellent nurseries and schools nearby
- Average-sized rooms with mid-century modern living area filled with natural light
**Potential Concerns:**
- Average crime rate in the area
- Small plot size may limit outdoor expansion opportunities
---
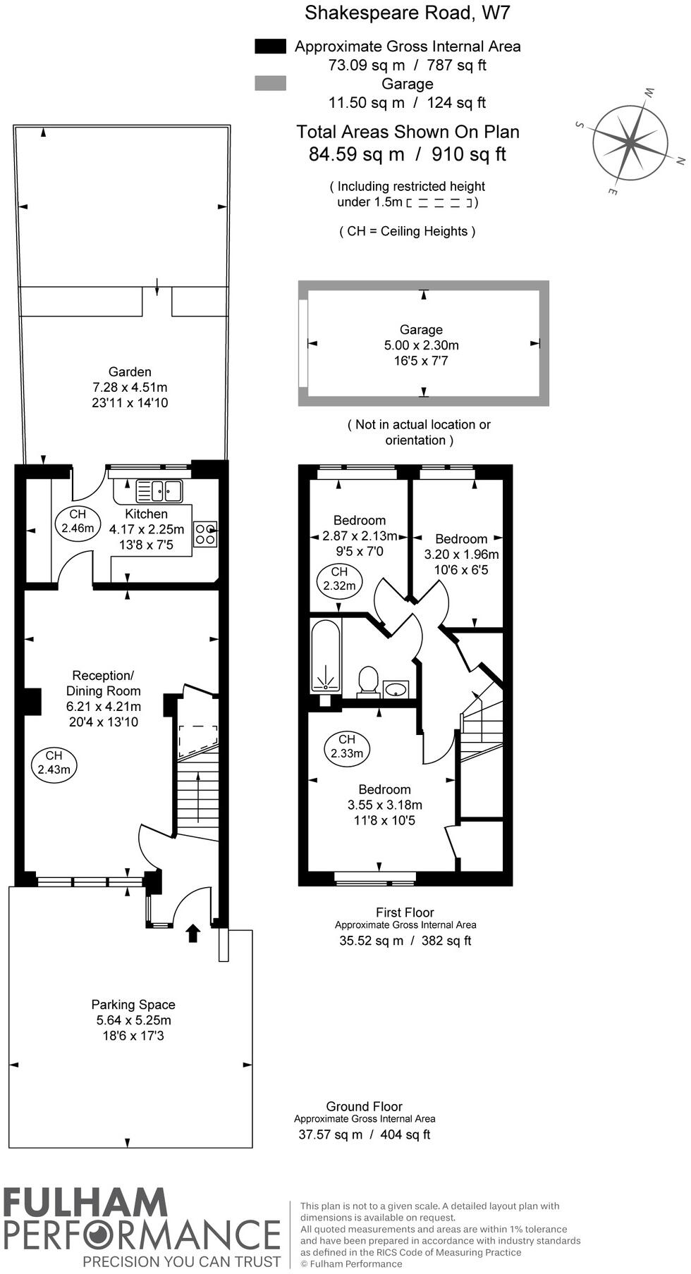
Nestled in the desirable Poet’s Corner area on Shakespeare Road, this charming three-bedroom, one-bathroom mid-terraced freehold house offers both comfort and potential. With a bright, mid-century modern living room and a lovely sun-soaked garden, this home provides the perfect sanctuary for young families or professionals looking for a serene retreat. The practical front garden accommodates parking, while the separate garage adds to the convenience.
Situated just minutes from the Elizabeth Line, commuting is a breeze, and the variety of parks and local amenities enrich everyday living. Families will appreciate the proximity to several excellent nurseries and schools, ensuring quality education options. Although the structural condition is solid, there may be minor maintenance aspects to consider, which allows for the opportunity to personalize your future family home. This remarkable property boasts a unique blend of lifestyle and potential, making it a must-see before it's gone!
3 bedroom semi-detached house for sale in Beresford Avenue, London, W7 — £650,000 • 3 bed • 1 bath • 888 ft²
6 bedroom semi-detached house for sale in Shakespeare Road, Hanwell W7 — £1,650,000 • 6 bed • 3 bath • 2855 ft²
6 bedroom semi-detached house for sale in Milton Road, Hanwell, London, W7 1LG, W7 — £1,095,000 • 6 bed • 3 bath • 1860 ft²
3 bedroom semi-detached house for sale in Cowper Road, Hanwell, W7 — £750,000 • 3 bed • 2 bath • 1350 ft²
3 bedroom terraced house for sale in Milton Road, Hanwell, London, W7 1LE, W7 — £799,950 • 3 bed • 2 bath • 350 ft²
3 bedroom end of terrace house for sale in Drayton Bridge Road, London, W7 — £700,000 • 3 bed • 1 bath • 1076 ft²


































































