Spacious country home with high ceilings and choice of finishes.
Five double bedrooms including two en-suites and top-floor sitting room/bed five
Set within a quiet rural hamlet, this stone barn conversion offers generous, characterful living over three levels. Large windows, high ceilings and exposed stonework create bright, atmospheric rooms; the top-floor sitting room with a circular window delivers exceptional long-distance countryside views. The ground floor benefits from underfloor heating and an impressive fireplace with a stone-flagged hearth ready for a wood-burning stove.
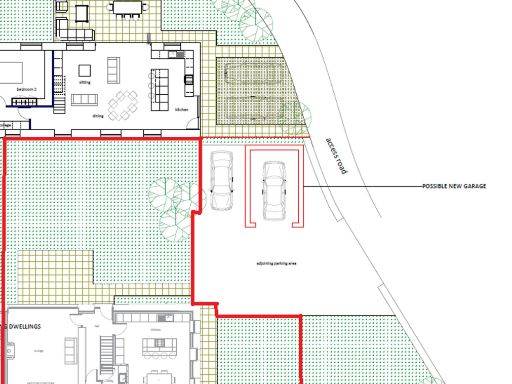
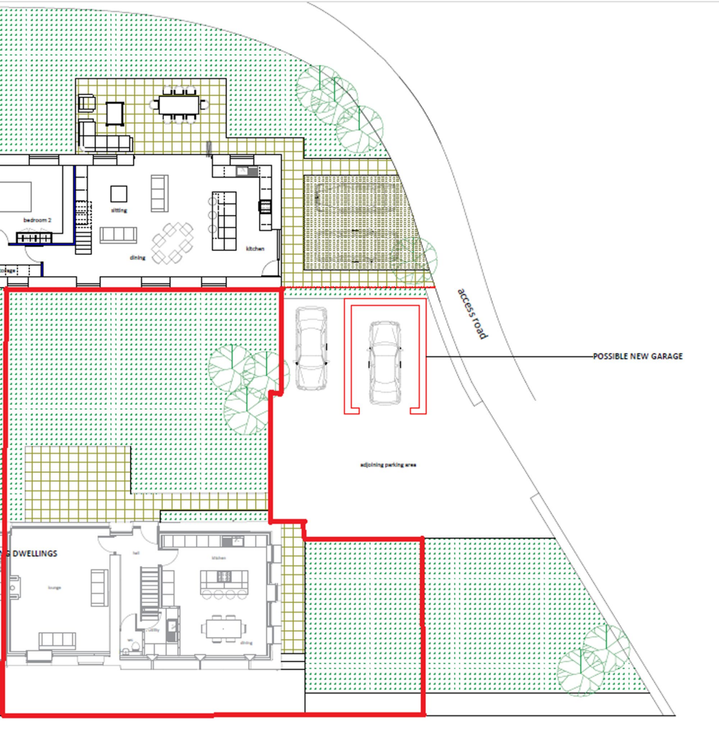
The layout includes a substantial open-plan kitchen/dining room, a formal sitting room, utility, downstairs WC and five versatile bedrooms (two with en-suites and a further principal en-suite to fit). Gardens lie to the front and side/rear, and the property shares a courtyard with ample off-street parking and visitor spaces. Practical extras include an EV charging point and fast broadband suitable for home working.
Important to note: the property is nearing completion and several kitchens and bathrooms remain unfinished, giving buyers choice but requiring final fit-out. The home requires some remaining installation and finishing trades to be completed before full occupancy. Council tax is described as expensive and the plot is modest in size compared with the house footprint.
For families seeking roomy, rural accommodation with scope to personalise finishes, or buyers wanting a high-spec barn with final decisions still to make, Rose Barn combines traditional character and modern services in an affluent, low-crime setting. Viewing will best convey the scale, ceiling heights and far-reaching views from the upper rooms.
5 bedroom barn conversion for sale in The Dairy Barn, Manor Farm, Wilshaw, Holmfirth, HD9 — £695,000 • 5 bed • 3 bath • 1898 ft²
4 bedroom detached house for sale in Hollin Brigg Lane, Holmbridge, Holmfirth, HD9 — £925,000 • 4 bed • 2 bath • 2167 ft²
5 bedroom barn conversion for sale in Crosland Edge, Meltham, Holmfirth, HD9 — £935,000 • 5 bed • 3 bath • 2375 ft²
2 bedroom cottage for sale in Far End Lane, Honley, Holmfirth, HD9 — £280,000 • 2 bed • 2 bath • 807 ft²
4 bedroom detached house for sale in West Barn, Moss Edge Farm, Holmbridge HD9 — £1,000,000 • 4 bed • 3 bath • 1994 ft²
4 bedroom character property for sale in Newland Fold, Blackmoorfoot, Linthwaite, HD7 — £720,000 • 4 bed • 3 bath • 1745 ft²


















































































