KT3 3EW - 3 bed bright three bedroom end in Richmond Park, KT3 3EW

View on Property Piper

3 bedroom end of terrace house for sale in Mount Pleasant Road, KT3

Summary - Mount Pleasant Road KT3 3EW

3 bed 1 bath End of Terrace

Perfect starter home near good schools, parks and transport links.
- Chain-free three-bedroom end-of-terrace, freehold
- Modern fitted kitchen with built-in appliances
- Open-plan living room, sunny private rear garden
- Double glazed windows and gas combination boiler
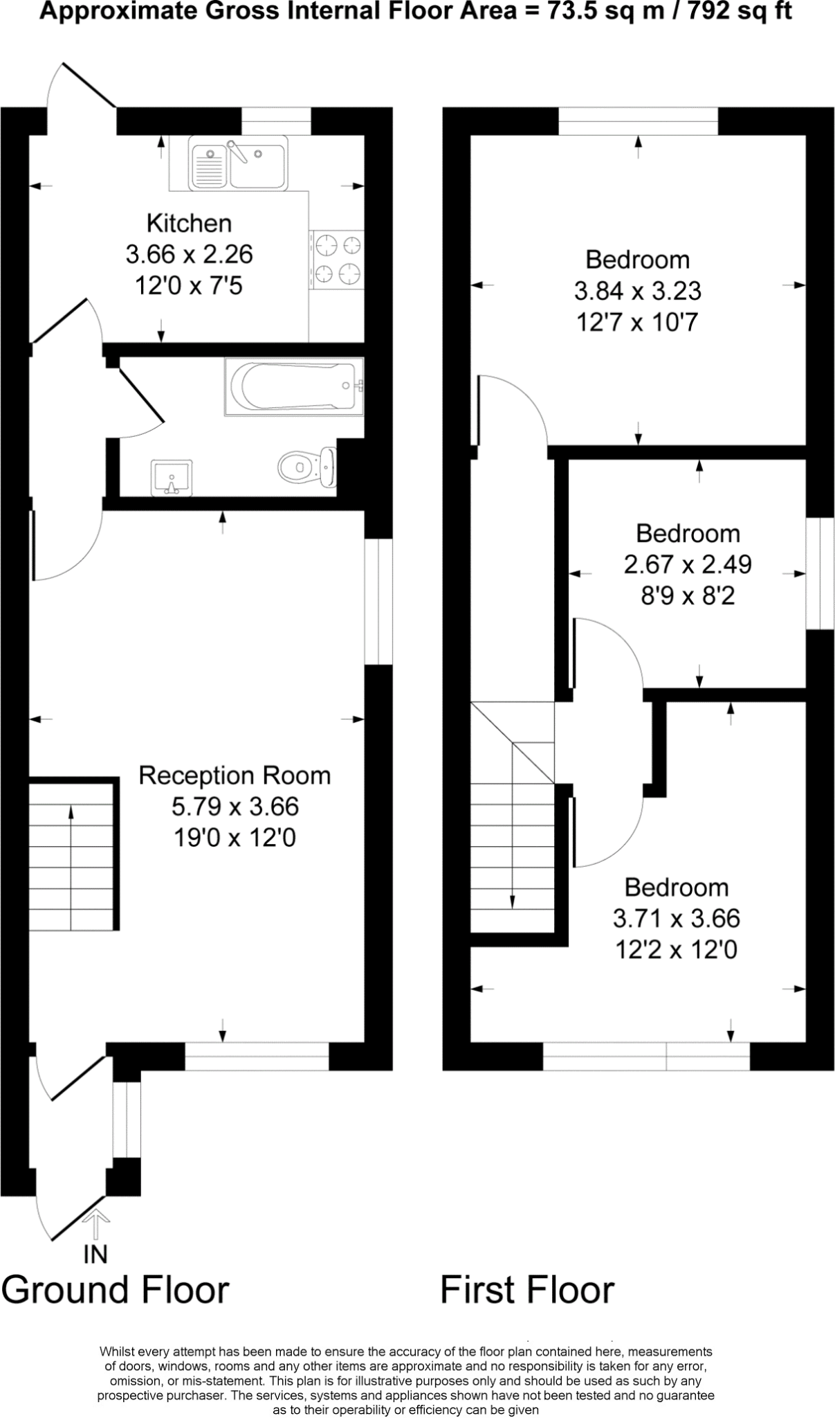
- About 792 sq ft — compact layout for a small family
- Single bathroom only; limited garden and plot size
A light, well-presented end-of-terrace house built in 2007 and offered chain free. The ground floor provides open-plan living with a modern fitted kitchen and built-in appliances, while the first floor has three good-size bedrooms and a contemporary bathroom. A sunny private rear garden adds outdoor space on a small plot.

Practical features include double glazing, gas central heating via a combination boiler, and freehold tenure. Broadband speeds are fast and mobile signal is excellent, supporting home working and streaming. The property sits in an area with good schools, parks and local amenities within walking distance.

The house is compact at about 792 sq ft and has a single bathroom, which may suit first-time buyers or small families but could feel limited for larger households. Overall the home is ready to move into but buyers seeking larger gardens or more living space should note the small plot and overall size.

Property Details

Image Descriptions

Floorplan Description

Rooms

Textual Property Features

Target Audience

AI Tags

Detected Visual Features

EPC Details

Nearby Schools

Nearest Bars And Restaurants

,,,,}

Nearest General Shops

,,}

Nearest Grocery shops

,,}

Nearest Supermarkets

,,}

Nearest Religious buildings

,,}

Nearest Medical buildings

,,,}

Nearest Airports

,,}

Nearest Leisure Facilities

,,,,}

Nearest Tourist attractions

,,}

Nearest Train stations

,,,,}

Nearest Bus stations and stops

,,,,}

Nearest Hotels

,,}

Tags

Local Market Stats

AirBnB Data

Similar Properties

Meta

High Res Images

Compatible Images

Low res Images

Thumbnails

Raw Images

High Res Floorplan Images

Compatible Floorplan Images

Low res Floorplan Images

FloorplanImages Thumbnail

Raw Floorplan Images