**Standout Features:**
- No onward chain
- Three bedrooms
- En-bloc garage with parking
- Established community in the sought-after Golden Triangle
- Communal green area with paved front and rear gardens
- Double-glazing and gas heating
**Notable Concerns:**
- Average-sized rooms
- Limited insulation assumed
- Constructed between 1967-1975, may require some modernization
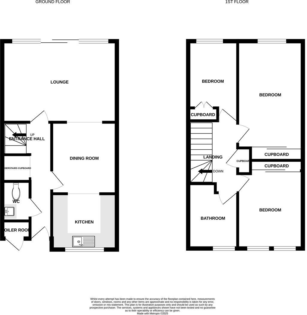
Experience comfortable living in this charming three-bedroom end terrace house nestled within the highly desirable Golden Triangle area of Norwich. This well-maintained property boasts a welcoming entrance hall that leads to a spacious lounge, a cozy dining room, a functional kitchen, and a conveniently located WC on the ground floor. Upstairs, you will find three bright bedrooms, all with built-in wardrobes, and a clean, inviting bathroom. The outdoor space features two paved gardens, perfect for relaxation and minor gardening, alongside a communal green area to foster a sense of community.
With an en-bloc garage providing essential parking and storage, the property is freehold and chained-free, making it ideal for families or first-time buyers seeking a peaceful yet vibrant neighborhood. The Golden Triangle is rich in local amenities, schools, and access to transport links, ensuring convenience at your doorstep. Please note that the property's brick construction may require insulation updates, providing the opportunity for future renovations to enhance energy efficiency. Don’t miss your chance to own a piece of this exclusive area! Book your viewing today and envision yourself in this tranquil home.
3 bedroom terraced house for sale in Cambridge Street, Norwich, NR2 — £220,000 • 3 bed • 1 bath • 797 ft²
3 bedroom terraced house for sale in Stafford Street, Norwich, NR2 — £220,000 • 3 bed • 1 bath • 711 ft²
3 bedroom terraced house for sale in Highland Road, Norwich, NR2 — £260,000 • 3 bed • 1 bath • 991 ft²
3 bedroom terraced house for sale in Bury Street, Norwich, NR2 — £250,000 • 3 bed • 1 bath • 776 ft²
3 bedroom detached house for sale in Jessopp Road, Norwich, NR2 — £610,000 • 3 bed • 2 bath
4 bedroom end of terrace house for sale in Beechbank, Norwich, NR2 — £425,000 • 4 bed • 1 bath • 1147 ft²


















































