Spacious period family home with large mature garden and strong refurbishment potential.
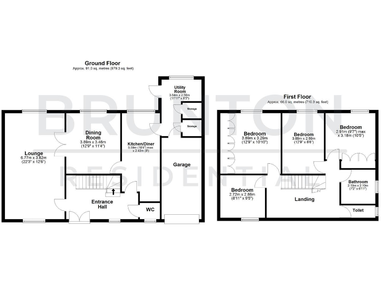
Spacious four-bedroom family home in Jesmond Dene Conservation Area
Extensive mature rear garden backing onto Jesmond Dene Road
Original features include parquet flooring and Rayburn range cooker
Integral garage, private driveway and multiple off-street parking spaces
Dual-aspect lounge and separate dining room with garden access
Requires internal modernisation; priced accordingly
Single main family bathroom (plus separate WC) to be considered
Council tax banding described as expensive
A spacious four-bedroom semi-detached home set within the Jesmond Dene Conservation Area, offering strong family appeal and generous outdoor space. The house retains original period details such as parquet flooring and a classic Rayburn range cooker, while providing practical features including an integral garage, driveway parking, and a useful utility/scullery.
The property’s standout asset is its extensive, mature rear garden backing onto Jesmond Dene Road, with multiple patios, mature trees and well-stocked borders — excellent for family life, outdoor entertaining or creating a garden studio (subject to consents). Interiors are bright with a dual-aspect lounge and separate dining room, and the layout suits family living across two floors.
Priced to reflect the need for some internal modernisation, the house offers strong potential to update bathrooms, kitchen finishes and services to contemporary standards. Note there is a single main family bathroom (plus a separate toilet) and council tax is described as expensive. Buyers should factor refurbishment costs into their plans.
Located close to Jesmond’s shops, cafes and excellent schools, with fast broadband, excellent mobile signal and low local crime, this freehold home suits families seeking space, character and proximity to green amenity. Viewing is recommended to appreciate the plot and scope for improvement.
5 bedroom detached house for sale in Glastonbury Grove, Jesmond, NE2 — £1,195,000 • 5 bed • 3 bath • 2953 ft²
3 bedroom semi-detached house for sale in Glastonbury Grove, Jesmond, NE2 — £800,000 • 3 bed • 2 bath • 1563 ft²
4 bedroom detached house for sale in Bemersyde Drive, Jesmond, Newcastle upon Tyne, NE2 — £1,100,000 • 4 bed • 2 bath • 2619 ft²
4 bedroom semi-detached house for sale in Beatty Avenue, Jesmond, NE2 — £585,000 • 4 bed • 1 bath • 1572 ft²
5 bedroom semi-detached house for sale in Bemersyde Drive, Jesmond, NE2 — £850,000 • 5 bed • 3 bath • 2907 ft²
4 bedroom terraced house for sale in Gowan Terrace, Jesmond, Newcastle Upon Tyne, NE2 — £500,000 • 4 bed • 2 bath • 2100 ft²






























































































































