Sunny coastal home with garage and parking, ideal for downsizers ready to personalise.
Sea views from balcony and side lounge window
Lift access to first-floor apartment
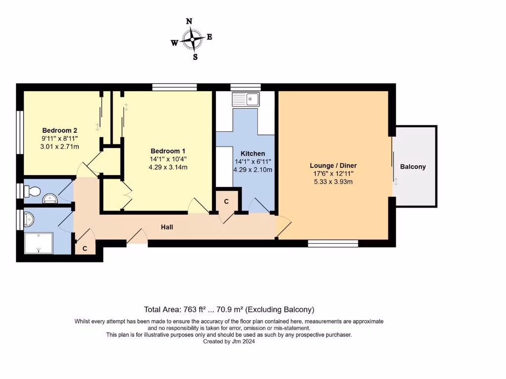
Two double bedrooms with built-in wardrobes
Requires modernisation throughout (cosmetic and possible updates)
Garage with electric up-and-over door plus allocated parking
Long lease: 980 years remaining (from 2005)
Service charge £2,362.60pa plus £19.65 levy
No forward chain; EER C70
A bright first-floor seafront apartment with genuine scope for improvement and long-term security. The double-aspect lounge opens to a balcony with sea glimpses; two double bedrooms include built-in wardrobes. Lift access and a garage plus an allocated parking space add practical convenience for everyday life.
The property requires modernisation throughout, making it an attractive proposition for downsizers seeking a comfortable coastal base or buyers wanting to add value. Heating is by mains gas with a modern energy rating (EER C70). The lease is effectively long freehold at 980 years remaining, and the sale is offered with no forward chain.
Communal costs are transparent: an annual service charge of £2,362.60 plus a small levy to the management company. Local amenities are within easy reach—seafront promenade, shops, leisure facilities and regular bus services—and the area is low risk for flooding and crime.
This apartment suits someone who values a seaside location and practical parking, and who is willing to undertake cosmetic and possible functional upgrades to create a customised coastal home.
 2 bedroom apartment for sale in Millfield Close, Rustington, BN16 — £300,000 • 2 bed • 1 bath • 863 ft²
 2 bedroom apartment for sale in Millfield Close, Rustington, BN16 — £300,000 • 2 bed • 1 bath • 863 ft² 3 bedroom apartment for sale in Overstrand Avenue, West Sussex, BN16 — £350,000 • 3 bed • 1 bath • 911 ft²
 3 bedroom apartment for sale in Overstrand Avenue, West Sussex, BN16 — £350,000 • 3 bed • 1 bath • 911 ft² 2 bedroom flat for sale in Marama Gardens, Rustington, BN16 — £250,000 • 2 bed • 1 bath • 731 ft²
 2 bedroom flat for sale in Marama Gardens, Rustington, BN16 — £250,000 • 2 bed • 1 bath • 731 ft² 2 bedroom flat for sale in Broadmark Lane, Rustington, BN16 — £425,000 • 2 bed • 2 bath • 1076 ft²
 2 bedroom flat for sale in Broadmark Lane, Rustington, BN16 — £425,000 • 2 bed • 2 bath • 1076 ft² 2 bedroom apartment for sale in Shaftesbury Road, Rustington, BN16 — £250,000 • 2 bed • 1 bath • 732 ft²
 2 bedroom apartment for sale in Shaftesbury Road, Rustington, BN16 — £250,000 • 2 bed • 1 bath • 732 ft² 3 bedroom flat for sale in Rackham Road, Rustington, BN16 — £325,000 • 3 bed • 1 bath • 942 ft²
 3 bedroom flat for sale in Rackham Road, Rustington, BN16 — £325,000 • 3 bed • 1 bath • 942 ft²






















































































































