Newly renovated three-bed family home with west garden and garage, near Summertown schools.
No onward chain — available for quick completion
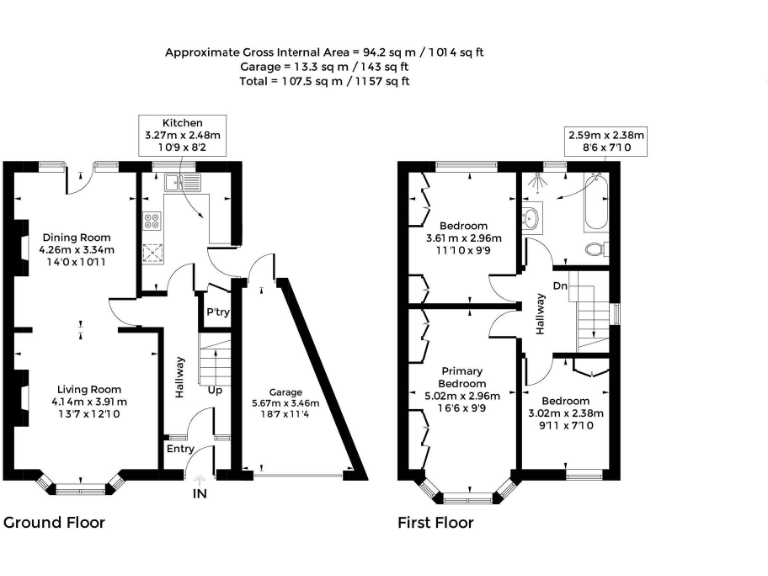
A spacious, newly renovated three-bedroom semi-detached house ideal for family life in a quiet no-through road within walking distance of Summertown. Two bright, interconnected reception rooms with wood floors and feature fireplaces lead directly to a west-facing lawn, offering afternoon sun and space for children to play. The modern kitchen includes integrated appliances and there is driveway parking plus a garage for storage.
The first floor has two good-sized double bedrooms, a third bedroom and a single family bathroom. Built-in storage is generous, and the unconverted loft gives clear scope for a loft extension (subject to planning permission) to increase living space. The property sits within the Cutteslowe Primary and Cherwell Secondary catchments and is close to parks, bus routes and the A40/A34 for commuting.
Practical considerations are set out plainly: the home has an EPC rating of D, solid brick walls likely without cavity insulation (assumed), and a single family bathroom for three bedrooms. Council tax is above average for the area. Overall, the house represents a comfortable, move-in-ready family home with realistic potential to add value through loft conversion and targeted insulation improvements.
3 bedroom end of terrace house for sale in Cunliffe Close, Oxford, OX2 — £850,000 • 3 bed • 2 bath • 1440 ft²
4 bedroom semi-detached house for sale in Carlton Road, Oxford, OX2 — £950,000 • 4 bed • 2 bath • 1615 ft²
3 bedroom detached house for sale in Victoria Road, Summertown, OX2 — £850,000 • 3 bed • 1 bath • 1536 ft²
2 bedroom semi-detached house for sale in Victoria Road, Oxford, OX2 — £750,000 • 2 bed • 2 bath • 944 ft²
3 bedroom semi-detached house for sale in Five Mile Drive, Oxford, OX2 — £800,000 • 3 bed • 1 bath • 1225 ft²
2 bedroom semi-detached house for sale in Harpes Road, Oxford, OX2 — £650,000 • 2 bed • 1 bath • 915 ft²


















































