**Standout Features:**
- Detached four-bedroom Victorian farmhouse
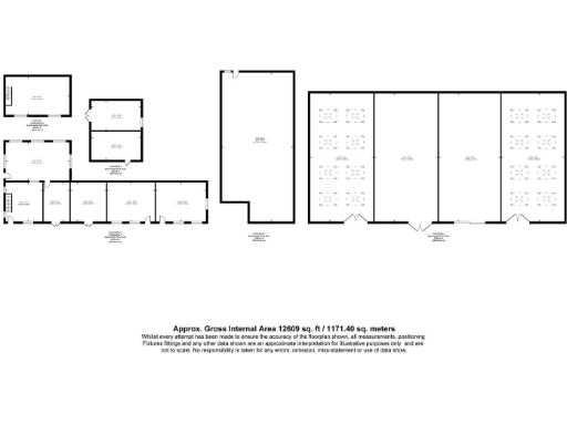
- Extensive range of traditional and modern agricultural buildings totaling 12,609 sqft
- Large plot of approximately 1.76 acres
- EPC rating of D59
- Potential for equestrian or agricultural use
- Excellent mobile signal; situated in an affluent area
**Potential Concerns:**
- Some outbuildings require refurbishment
- Double glazing status is unknown; insulation may be needed
- Slow broadband speeds reported
Discover your ideal home at Garswood Gates Farm, a charming detached Victorian farmhouse with four spacious bedrooms nestled within a generous 1.76-acre plot. This property offers not only a serene rural lifestyle with fantastic views over the countryside but also presents a perfect opportunity for those seeking to invest in agricultural ventures or a family-friendly haven. The main house boasts approximately 1,540 square feet of living space, complemented by extensive outbuildings, including a Grain Drying Shed and grain silos, providing ample storage and potential for expansion.
Strategically located in a prospering suburban setting, this property is close to well-rated primary and secondary schools—an ideal choice for families. While there may be a few maintenance needs in the outbuildings and potential insulation improvements, the opportunity to personalize your rural retreat is abundant. This is a unique chance to secure a versatile property in a coveted area, combining traditional charm with modern possibilities. Don't miss out—explore the potential of Garswood Gates Farm today!
4 bedroom house for sale in Garswood Gates Farm, Liverpool Road, Haydock, Ashton-In-Makerfield, WA11 — £1,900,000 • 4 bed • 1 bath • 13851 ft²
Farm for sale in Garswood Gates Farm, Liverpool Road, Haydock, Ashton-In-Makerfield, WA11 — £1,900,000 • 4 bed • 1 bath • 14428 ft²
4 bedroom detached house for sale in Fox Lane, Hoghton, Preston, PR5 — £800,000 • 4 bed • 2 bath • 4804 ft²
Land for sale in Lot 2 - Garswood Gates Farm, Liverpool Road, Haydock, Ashton-In-Makerfield, WA11 — £1,100,000 • 1 bed • 1 bath
3 bedroom detached house for sale in Pimbo Lane, Upholland, Skelmersdale, Lancashire, WN8 — £1,400,000 • 3 bed • 1 bath • 2026 ft²
4 bedroom detached house for sale in Alt Road, Hightown, Liverpool, Merseyside, L38 — £700,000 • 4 bed • 2 bath • 1357 ft²










































































































