Spacious character home with scope to modernise and add value in North Shields.
- Freehold mid-terrace with Georgian brick facade and period character
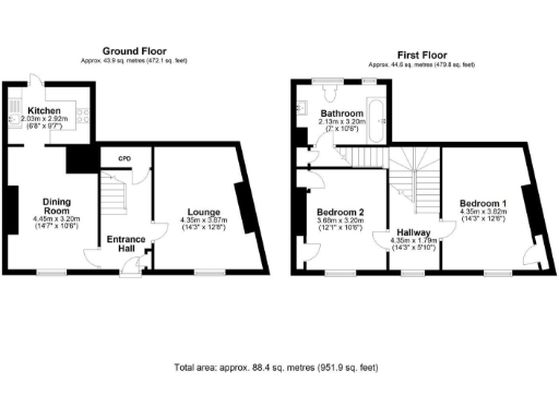
- 951 sq ft: two receptions, two bedrooms, bathroom, kitchen
- High ceiling living room and tall sash-style windows
- Small private rear yard with external storage
- Double glazing fitted before 2002 — may be dated
- Solid brick walls likely without cavity insulation
- Fast broadband, excellent mobile signal, very cheap council tax
- Close to good schools, shops and regular public transport
This well-proportioned two-bedroom mid-terrace offers 951 sq ft of traditional living space in an established North Shields street. Period features such as tall sash-style windows, high ceilings in the living room and a Georgian brick façade give the house character and good natural light throughout. The layout includes two reception rooms, a kitchen, bathroom and a small private yard with storage — practical for everyday family life.
The property is freehold and sits in an affluent, family-focused neighbourhood with fast broadband and excellent mobile signal — good for homeworking and connectivity. Local schools are highly rated nearby and everyday amenities, shops and public transport links are within easy reach. Council tax is very cheap, helping running costs.
There are some important practical considerations: the solid brick walls are assumed to be without cavity insulation, and the double glazing installed before 2002 may be dated. The house retains traditional construction from the early 20th century and will reward targeted updating and insulation improvements. Buyers should factor potential energy-efficiency upgrades and general modernisation into their plans and budget.
Overall, the property suits buyers seeking a roomy period terrace with character and scope to add value through sympathetic refurbishment. It's particularly appealing to families or first-time buyers who prioritise location, space and good local schools, and who are comfortable with moderate updating to improve comfort and efficiency.
4 bedroom house for sale in Queen Street, North Shields, NE30 — £250,000 • 4 bed • 2 bath • 1680 ft²
2 bedroom flat for sale in Grey Street, North Shields, NE30 — £184,950 • 2 bed • 1 bath • 793 ft²
3 bedroom flat for sale in North King Street, North Shields, NE30 — £149,950 • 3 bed • 1 bath • 718 ft²
4 bedroom maisonette for sale in Whitby Street, North Shields, Tyne and Wear, NE30 — £139,950 • 4 bed • 1 bath • 1070 ft²
2 bedroom ground floor flat for sale in West Percy Street, North Shields, NE29 — £99,950 • 2 bed • 1 bath • 728 ft²
3 bedroom house for sale in Elsdon Terrace, North Shields, NE29 — £80,000 • 3 bed • 1 bath • 991 ft²






















































