Newly built three-bedroom detached house with off-street parking and fast fibre broadband.
Three double bedrooms, master with en-suite
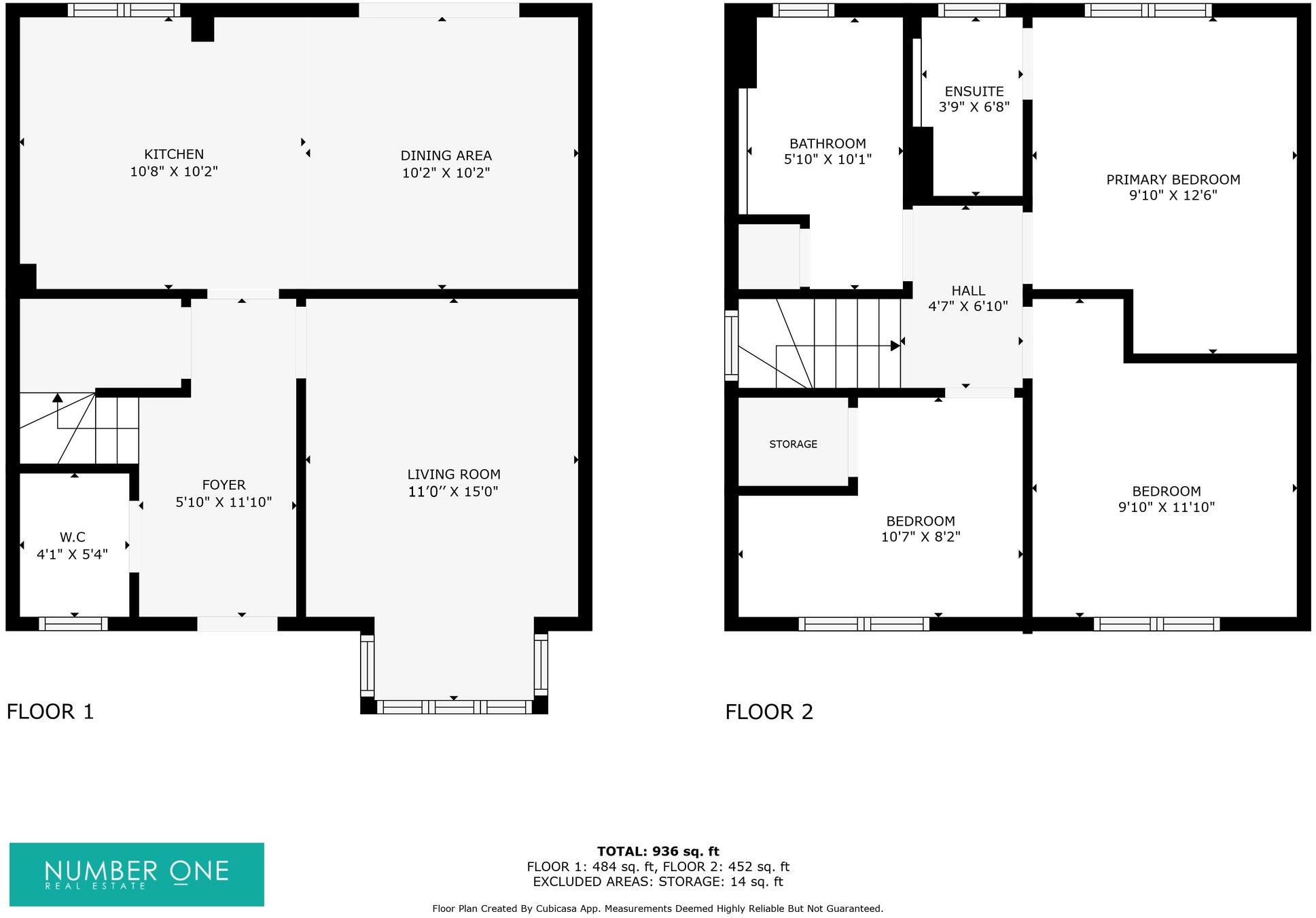
This recently constructed three-bedroom detached house in NP19 offers modern living designed for a growing family. Built in 2021 and newly renovated, the home has a bright bay-fronted living room, an open-plan kitchen/diner with integrated Bosch appliances, and practical storage throughout. The property benefits from fast FTTP broadband and excellent mobile signal — useful for remote working and streaming.
Upstairs are three well-proportioned double bedrooms, including a master with an en-suite, and a family bathroom with an airing cupboard. The layout works well for family life or for a buyer wanting flexible space for a home office. Heating is mains gas with a boiler and radiators; walls have average thermal performance (U-value 0.20 W/m²K) and the EPC rating is B.
Outside there is off-street parking for multiple cars on a paved driveway and an enclosed rear garden accessed via double doors from the kitchen/diner. The property sits close to local amenities including Spytty Retail Park and Glan Llyn Primary School within walking distance, and has straightforward road links to Newport, Cardiff and Bristol.
Buyers should note the location falls within a very deprived area statistically and council tax is above average (Band E). An annual service charge of £300 is payable (bi‑annual payment). The plot is recorded as small, which may limit extensions or major landscaping despite the enclosed garden.
3 bedroom semi-detached house for sale in Bloomery Circle, Newport, NP19 — £240,000 • 3 bed • 2 bath • 721 ft²
3 bedroom semi-detached house for sale in Deepwater Drive, Newport, NP19 — £300,000 • 3 bed • 2 bath • 947 ft²
3 bedroom detached house for sale in Pendragon Grove, Newport, NP20 — £350,000 • 3 bed • 2 bath • 1119 ft²
5 bedroom detached house for sale in Dolomite Close, Newport, NP19 — £440,000 • 5 bed • 3 bath • 1683 ft²
4 bedroom detached house for sale in Bloomery Circle, Newport, NP19 — £300,000 • 4 bed • 2 bath • 1184 ft²
3 bedroom semi-detached house for sale in Bessemer Drive, Newport, NP19 — £280,000 • 3 bed • 2 bath • 936 ft²


































































































































































