Low-maintenance garden and integrated kitchen ideal for family life.
Three bedrooms over three floors, flexible family layout
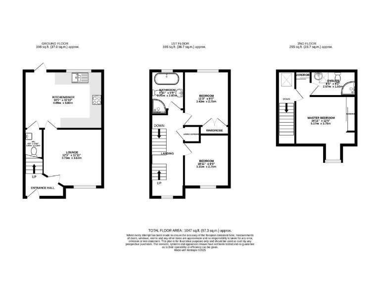
This attractive three-bedroom semi-detached home is arranged over three floors, offering flexible family living in a well-regarded village. The open-plan kitchen-dining room with integrated appliances and French doors creates a bright hub for daily life and entertaining. The principal bedroom occupies the top floor and includes fitted wardrobes plus a modern en suite, giving parents a private retreat.
Two further bedrooms and a contemporary four-piece family bathroom with a freestanding bath sit on the first floor, while a handy ground-floor cloakroom adds practical convenience. The property was built in the late 2000s, has double glazing and an air-source heat pump heating system, helping with running costs and environmental performance.
Outside is deliberately low-maintenance: a paved patio and artificial lawn create usable outdoor space without heavy upkeep, and there is off-street parking to the rear. The village location provides excellent local amenities and good schools nearby, while broadband speeds are fast and crime levels are low.
Notable drawbacks: the plot is small and the parking is accessed to the rear, which may be less convenient for some buyers. Mobile signal is average. Overall, the house is modern, well-presented, and ready to occupy, ideal for families seeking a manageable, low-maintenance home in a very affluent local area.
3 bedroom semi-detached house for sale in Lockley Gardens, Sapcote, LE9 — £295,000 • 3 bed • 2 bath • 1109 ft²
3 bedroom semi-detached house for sale in Lockley Gardens, Sapcote, LE9 — £270,000 • 3 bed • 1 bath • 811 ft²
3 bedroom semi-detached house for sale in Lockley Gardens, Sapcote, LE9 — £300,000 • 3 bed • 2 bath • 1062 ft²
3 bedroom semi-detached house for sale in Oaklands Way,Earl Shilton,Leicester,LE9 7JW, LE9 — £270,000 • 3 bed • 1 bath • 991 ft²
3 bedroom detached house for sale in William Spencer Avenue, Sapcote, Leicester, LE9 — £335,000 • 3 bed • 3 bath
3 bedroom semi-detached house for sale in Northfield Road, Sapcote, LE9 — £260,000 • 3 bed • 2 bath • 775 ft²


























































