**Standout Features:**
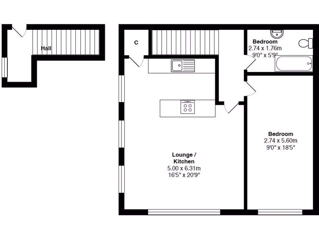
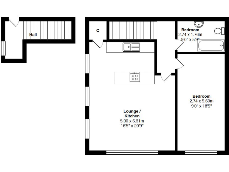
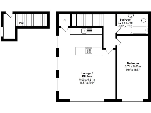
- Charming one-bedroom split-level apartment in a converted historical school building
- Spacious double bedroom with ample wardrobe space and elegant design
- Modern open-plan kitchen with integrated appliances and breakfast bar, perfect for casual dining
- Modern bathroom with P-shaped shower bath and high-quality fittings
- Located in a cosmopolitan area with excellent transport links and vibrant community amenities
**Concerns:**
- Leasehold property with a ground rent of £150
- High crime rate in the local area
- Broadband speeds are slow, which may affect connectivity
- Overall area classification indicates high deprivation levels
**Summary:**
Discover comfort and style in this one-bedroom split-level apartment located in the heart of Halifax. With its unique Victorian architecture, large windows, and high ceilings, this residence offers a warm welcome as you step inside. The open-plan kitchen seamlessly integrates with the living and dining areas, making it an ideal space for entertaining or relaxing. Enjoy a modern kitchen equipped with integrated appliances, complemented by an elegant breakfast bar for casual dining. The spacious double bedroom and well-fitted bathroom ensure functionality and comfort.
This apartment is perfect for first-time buyers, offering a blend of modern living in a vibrant community filled with convenience and dynamism. However, prospective buyers should be mindful of the area's high crime rate and the slow broadband speeds, which may impact day-to-day life. Priced competitively at £105,000, this leasehold apartment presents an excellent opportunity to own a charming piece of Halifax's history while providing the potential for personal touches to make it your home. Don’t miss out on this unique living experience!
1 bedroom apartment for sale in Balmoral Place, Halifax, West Yorkshire, HX1 — £89,000 • 1 bed • 1 bath • 450 ft²
2 bedroom apartment for sale in Prescott Street, Halifax, HX1 — £125,000 • 2 bed • 1 bath • 471 ft²
2 bedroom apartment for sale in Balmoral Place, Halifax, HX1 — £120,000 • 2 bed • 1 bath • 754 ft²
2 bedroom apartment for sale in Clare Hall, Halifax, HX1 — £150,000 • 2 bed • 2 bath • 958 ft²
2 bedroom flat for sale in Prescott Street, Halifax, West Yorkshire, HX1 — £150,000 • 2 bed • 2 bath • 879 ft²
1 bedroom apartment for sale in King Cross Street, Halifax, HX1 — £50,000 • 1 bed • 1 bath • 422 ft²


























































































