Prominent freehold High Street retail with two flats — vacant possession, refurb required..
Freehold mixed-use building, prominent High Street frontage
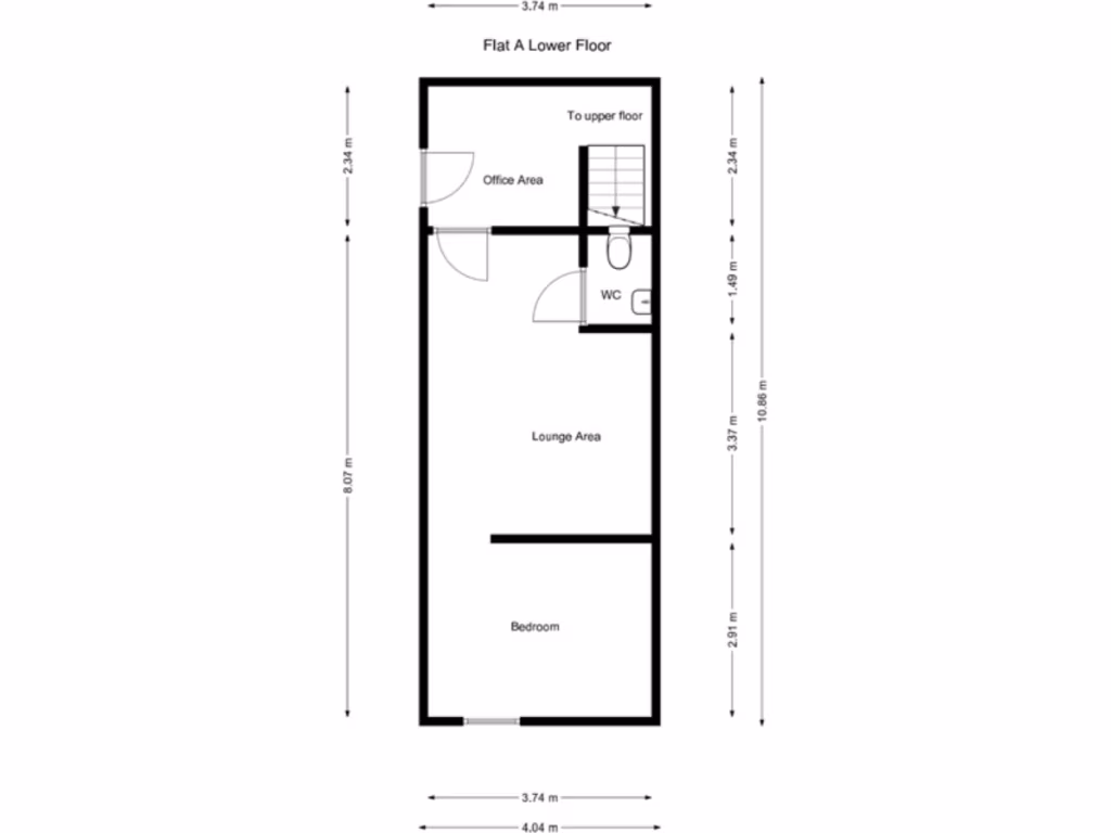
Large internal area: approximately 3,923 sq ft (overall size extremely large)
Ground-floor retail unit with rear workshop; versatile uses (STP)
Two 1-bed flats above sold with vacant possession on completion
Requires external maintenance: brickwork attention and flat roof repairs
Area has high crime rates and is very deprived — consider rental risk
Small plot size limits external expansion or large alterations
Excellent mobile signal; broadband speeds average
This freehold mixed-use property sits on Skegness High Street, offering a prominent retail frontage with a substantial 3,923 sq ft footprint. The ground floor retail unit plus rear workshop provide flexible commercial space suitable for a range of uses (subject to planning). Two self-contained 1‑bed flats above are included with vacant possession, creating immediate rental income potential after refurbishment.
The building is well-located for footfall and local services, with excellent mobile signal and easy access to public transport and town-centre amenities. The property suits investors seeking buy-to-let income or an owner-occupier wanting a live‑work base with scope to reconfigure the space (STP).
Buyers should note notable negatives: the area scores high for crime and very high deprivation, which will affect tenant mix and rental values. The building needs external maintenance—brickwork attention and a flat roof repair are reported—and many internal areas will require refurbishment. Broadband speeds are average; plot size is small, limiting external expansion.
Overall this is a value-driven opportunity for a hands-on investor or occupier prepared to refurbish and manage a town-centre asset. The combination of a large internal area, vacant possession, and town-centre location offers clear upside where capital improvement and active asset management are applied.
High street retail property for sale in 52-54 High Street, Skegness, Lincolnshire, PE25 — £195,000 • 1 bed • 1 bath • 3179 ft²
High street retail property for sale in High Street, Skegness, PE25 — £300,000 • 1 bed • 1 bath • 2646 ft²
High street retail property for sale in 120-122 Lumley Road, Skegness, Lincolnshire, PE25 — £385,000 • 1 bed • 1 bath • 3840 ft²
Shop for sale in 59/61 Roman Bank, Skegness, PE25 — £135,000 • 1 bed • 1 bath • 2800 ft²
Mixed use property for sale in Drummond Road, Skegness, PE25 — £215,000 • 1 bed • 1 bath
High street retail property for sale in Lumley Road, Skegness, Lincolnshire, PE25 — £175,000 • 1 bed • 1 bath


































































































