**Standout Features:**
- Beautifully designed two-bedroom top floor apartment (built in 2019)
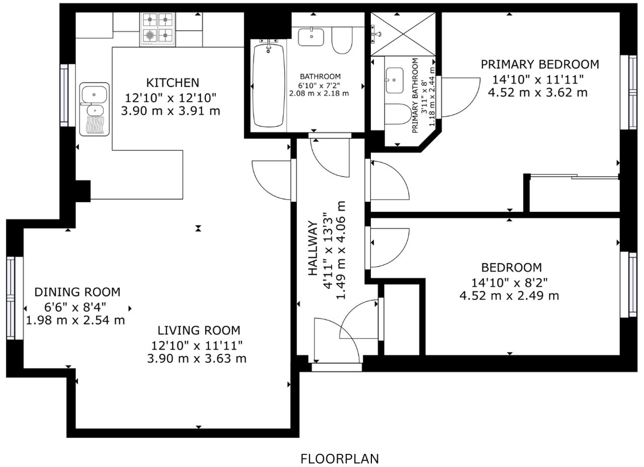
- Spacious open-plan living and dining area
- Two generous double bedrooms, including a stylish en suite
- Modern main bathroom with contemporary fixtures
- Allocated and visitor off-street parking
- Located in the vibrant town of Auchterarder with diverse amenities
- Excellent connectivity via Gleneagles railway station
This immaculate, contemporary two-bedroom top-floor apartment in Auchterarder is perfect for professional couples, first-time buyers, or buy-to-let investors looking to enjoy a blend of comfort and convenience. Spanning a generous 743 square feet, the apartment features a welcoming reception hallway and a striking open-plan living/dining kitchen bathed in natural light. Both double bedrooms offer spacious retreats, with one benefiting from its own stylish en suite shower room.
Beyond the apartment, the local area is rich in amenities, including supermarkets, local butchers, and health services, with excellent schools nearby. A short distance from the world-renowned Gleneagles Hotel, residents can indulge in luxurious leisure facilities and fine dining, including a two-Michelin-star experience. With fast broadband speeds and a council tax rate that’s affordable, this apartment presents an enticing opportunity for a variety of buyers.
Don’t miss out on this outstanding living option in a sought-after location, combining modern design with potential for personalization to fit any lifestyle. With contemporary comfort and a vibrant community at your doorstep, your dream home in Perthshire awaits!















































