BR3 4ST - 2 bedroom flat for sale in Birkbeck Road, Beckenham, BR3

View on Property Piper

2 bedroom flat for sale in Birkbeck Road, Beckenham, BR3

Summary - 173A BIRKBECK ROAD BECKENHAM BR3 4ST

2 bed 1 bath Flat

**Standout Features:**
- Long lease of 149 years
- Private garden with a southern aspect
- Open plan kitchen/diner ideal for entertaining
- Three well-defined bedrooms
- Quiet, sought-after location with low crime rates
- Access to excellent transport links (Birkbeck Station 0.3 miles away)

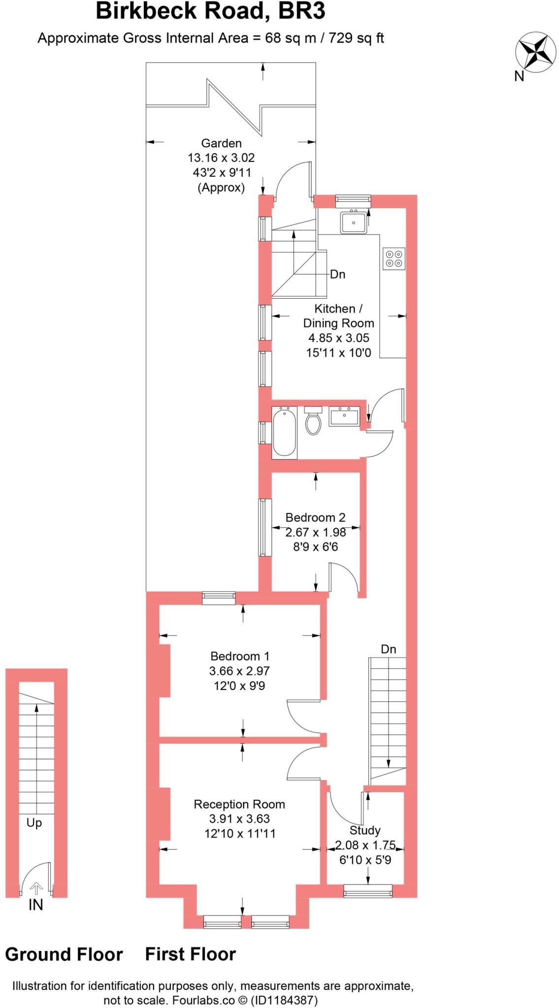
This charming Edwardian semi-detached flat expertly marries period allure with practicality, offering an appealing 729 sq ft of living space in a coveted neighborhood. Featuring a long lease of 149 years, the home boasts a welcoming entrance and a sunny garden, ideal for tranquil moments or lively barbecues. The open plan kitchen/diner is a bright social hub, beautifully finished with modern cabinetry and integrated appliances, while generous windows illuminate the stylish reception room with its sophisticated two-tone décor.

With three bedrooms, including a primary suite with garden views, plus a modern bathroom, this flat accommodates family and guest needs seamlessly. The property's condition is excellent, save for a need for minor maintenance—making it an inviting opportunity for families and professionals seeking comfort, convenience, and a touch of elegance.

The surrounding area enhances lifestyle offerings with easy access to schools rated 'Good' and 'Outstanding', diverse dining options, and swift transport links to central London. This property, with its unique balance of charm, capacity for future enhancements, and serene location, is not one to miss—schedule your immersive 3D tour and book your viewing today.

Property Details

Image Descriptions

Floorplan Description

Rooms

Textual Property Features

Detected Visual Features

EPC Details

Nearby Schools

Nearest Bars And Restaurants

,,,,}

Nearest General Shops

,,}

Nearest Grocery shops

,,}

Nearest Supermarkets

,,}

Nearest Religious buildings

,,}

Nearest Medical buildings

,,,}

Nearest Airports

,,}

Nearest Leisure Facilities

,,,,}

Nearest Tourist attractions

,,}

Nearest Train stations

,,,,}

Nearest Bus stations and stops

,,,,}

Nearest Hotels

,,}

Tags

Local Market Stats

AirBnB Data

Similar Properties

Meta

High Res Images

Compatible Images

Low res Images

Thumbnails

Raw Images

High Res Floorplan Images

Compatible Floorplan Images

Low res Floorplan Images

FloorplanImages Thumbnail

Raw Floorplan Images