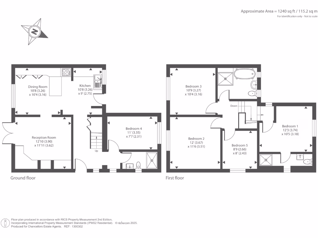
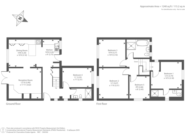
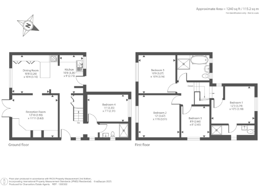
**Standout Features:**
- Semi-detached 4/5 bedroom family home
- Solar panels installed for energy efficiency
- Master bedroom with en suite bathroom
- Extended living spaces, including a 5th bedroom/reception room
- Ample parking: garage plus separate driveways for 3 cars
- Generous front and rear gardens, ideal for outdoor activities
- Located on a peaceful no-through road
**Property Summary:**
This semi-detached family residence offers a harmonious blend of space and potential in a quiet neighborhood. With 4/5 bedrooms, including a master suite, and a convenient downstairs shower room, this home is designed for modern family living. The extensive grounds, combined with solar panels, enhance the property's appeal, promising both comfort and energy savings.
Intriguingly designed with possibilities to update and personalize, it features a delightful 1970s living room, perfect for those looking to add their unique style. Benefit from the privacy and safety of a no-through road while enjoying easy access to essential amenities and good-rated local schools, making it an ideal choice for family life.
While it presents a fantastic opportunity, it is worth noting that it lies in an area facing economic challenges, which may impact future resale value. With average maintenance needs and strong heating systems already in place, this property provides a cozy retreat—waiting for you to make it yours. Don’t miss the chance to invest in this versatile home—opportunities like this don’t last long!
5 bedroom detached house for sale in Bodiam Drive, Toothill, Swindon, SN5 — £350,000 • 5 bed • 2 bath • 1255 ft²
4 bedroom semi-detached house for sale in Dorchester Road - Lawn, Swindon, SN3 — £465,000 • 4 bed • 2 bath • 1723 ft²
3 bedroom terraced house for sale in Frobisher Drive, Swindon, Wiltshire, SN3 — £240,000 • 3 bed • 1 bath • 752 ft²
3 bedroom semi-detached house for sale in Wheatcroft Way, Swindon, SN1 — £325,000 • 3 bed • 2 bath • 1023 ft²
5 bedroom detached house for sale in Eastmere, Liden, Swindon, Wiltshire, SN3 — £475,000 • 5 bed • 2 bath • 2152 ft²
3 bedroom semi-detached house for sale in Nyland Road, Nythe, Swindon, Wiltshire, SN3 — £368,000 • 3 bed • 2 bath • 1469 ft²






















































































