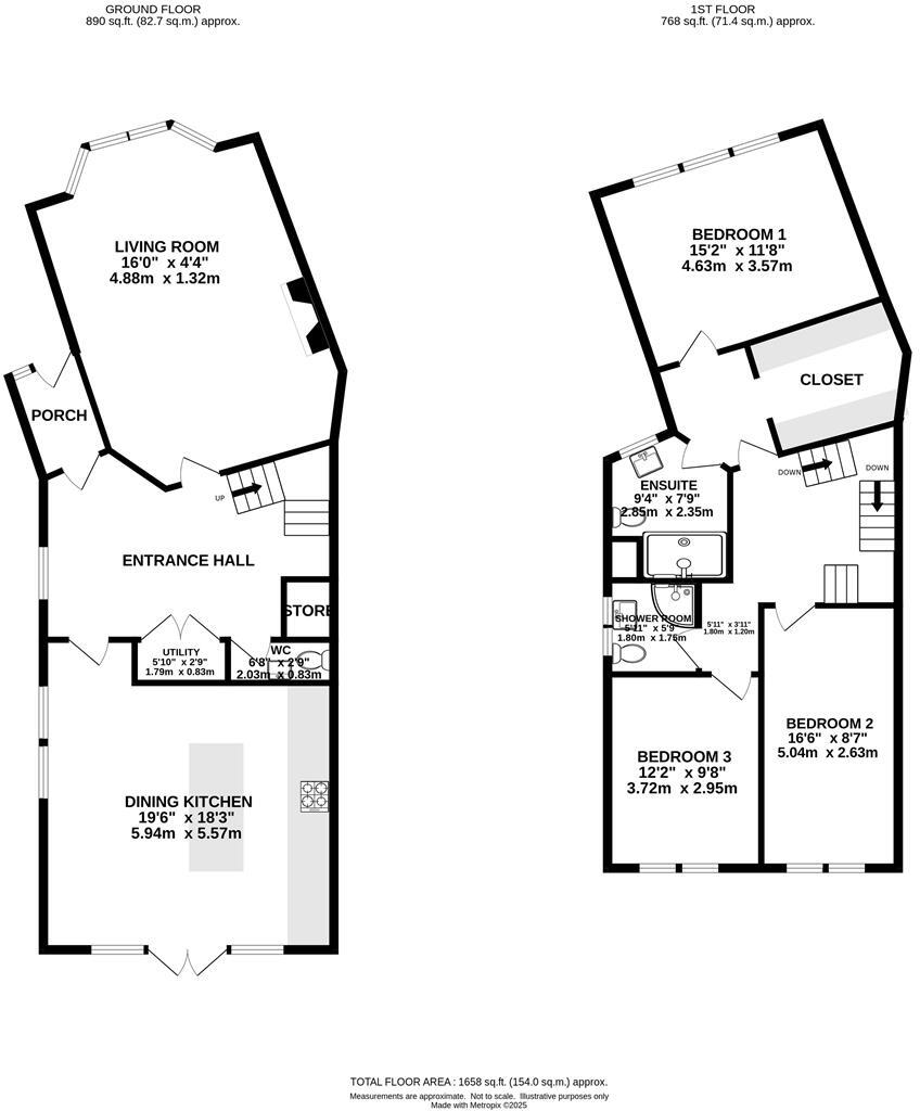
**Standout Features:**
- Recently modernised three-bedroom semi-detached home
- Open-plan living area with high ceilings and abundant natural light
- En-suite shower room in the main bedroom plus an additional shower room
- Attractive courtyard garden ideal for outdoor entertaining
- Off-street parking for convenience
- Located in a desirable residential area of Harrogate
**Concise Summary:**
Discover this charming, recently modernised three-bedroom semi-detached home in the heart of Harrogate, perfect for families or first-time buyers seeking comfort and convenience. The impressive open-plan living space is flooded with natural light, thanks to expansive sliding doors that open onto a delightful courtyard garden—ideal for alfresco dining and gatherings. The main bedroom offers luxury with a walk-in wardrobe and en-suite shower room, while two additional generously sized bedrooms share a modern shower room.
Positioned in a sought-after residential area, this property boasts easy access to local amenities and excellent transport links, enhancing its appeal for both commuting and everyday living. With off-street parking and a welcoming atmosphere, this home seamlessly blends modern living with traditional charm. Don't miss the chance to create lasting memories in this standout property before it's gone!
3 bedroom end of terrace house for sale in King Edwards Drive, Harrogate, HG1 — £260,000 • 3 bed • 1 bath • 936 ft²
3 bedroom terraced house for sale in King Edwards Drive, Harrogate, HG1 4HN, HG1 — £260,000 • 3 bed • 1 bath • 742 ft²
3 bedroom house for sale in Dragon Terrace, Harrogate, HG1 — £330,000 • 3 bed • 1 bath • 879 ft²
4 bedroom semi-detached house for sale in Kendal Road, HARROGATE, HG1 — £375,000 • 4 bed • 2 bath • 926 ft²
3 bedroom semi-detached house for sale in St. Johns Crescent, Harrogate, HG1 — £285,000 • 3 bed • 1 bath • 821 ft²
4 bedroom terraced house for sale in King Edward's Drive, Harrogate, HG1 — £375,000 • 4 bed • 1 bath • 1723 ft²


































































