LA12 0JP - 4 bedroom detached house for sale in Pennington, Ulverston,…

View on Property Piper

4 bedroom detached house for sale in Pennington, Ulverston, Cumbria, LA12 0JP, LA12

Summary - Holebiggerah Cottage, Pennington LA12 0JP

4 bed 2 bath Detached

**Standout Features:**
- Spacious, character-filled cottage with original features
- Dual aspect lounge and separate dining room
- Four double bedrooms with versatile living space
- Huge barn and field included, excellent for development potential
- Mature private gardens and ample off-street parking
- Beautiful rural location with a tranquil ambiance
- Freehold property with council tax band E

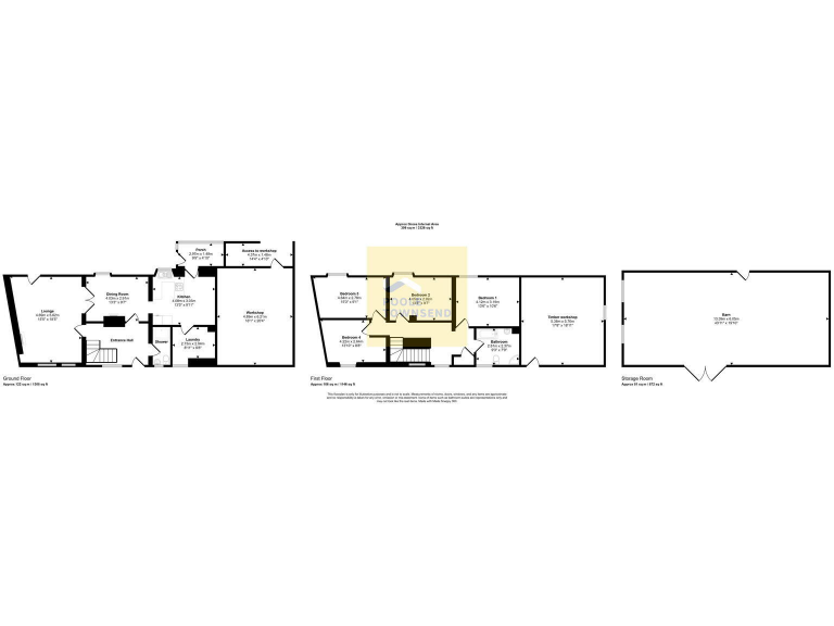
Nestled in a picturesque rural setting, this charming detached character cottage offers spacious living with two reception rooms, a practical breakfast kitchen, and a convenient ground-floor shower room. The first floor accommodates four generously sized double bedrooms and a family bathroom, making it ideal for family living or entertaining. Outside, the property boasts mature gardens and ample parking, complemented by a sizable barn and adjoining field that present exciting development opportunities (subject to planning permissions).

While the cottage showcases original features, it may require some modernization and renovation to meet contemporary living standards, providing an excellent canvas for your personal touch. This hidden gem offers both exclusivity and privacy while remaining connected to nearby amenities and schools with Good Ofsted ratings. With its substantial potential and idyllic location, this property is not just a home but a promising investment in a tranquil lifestyle. Don’t miss your chance to make this countryside retreat your own!

Property Details

Brochure Descriptions

Image Descriptions

Floorplan Description

Rooms

Textual Property Features

Detected Visual Features

EPC Details

Nearby Schools

Nearest Bars And Restaurants

,,,,}

Nearest General Shops

,,}

Nearest Grocery shops

,,}

Nearest Supermarkets

,,}

Nearest Religious buildings

,,}

Nearest Medical buildings

,,,}

Nearest Leisure Facilities

,,,,}

Nearest Tourist attractions

,,}

Nearest Train stations

,,,,}

Nearest Bus stations and stops

,,,,}

Nearest Hotels

,,}

Tags

Local Market Stats

AirBnB Data

Similar Properties

Meta

High Res Images

Compatible Images

Low res Images

Thumbnails

Raw Images

High Res Floorplan Images

Compatible Floorplan Images

Low res Floorplan Images

FloorplanImages Thumbnail

Raw Floorplan Images