Recently improved two-bedroom terrace with parking and private garden near Stamford town centre.
Walking distance to Stamford town centre
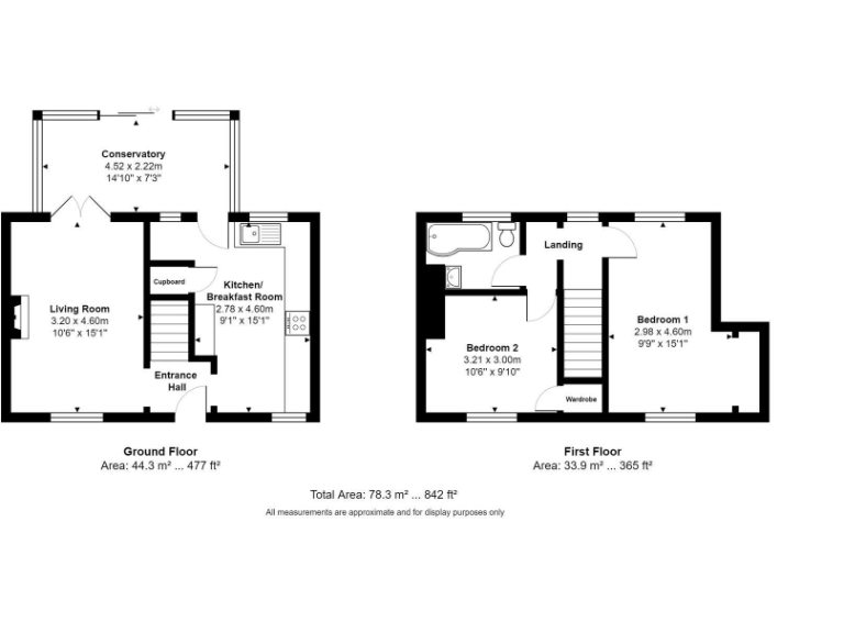
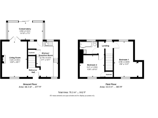
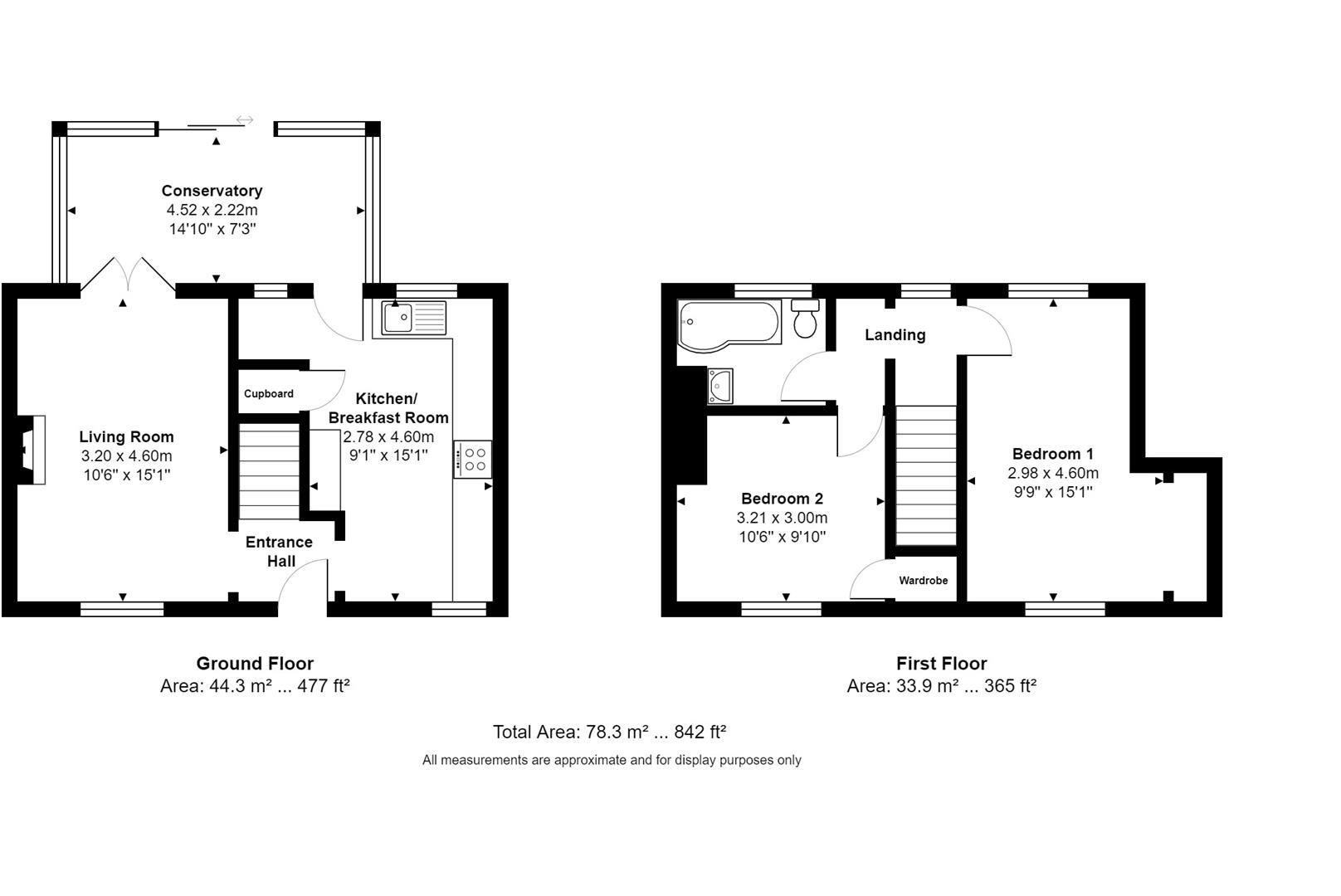
Step into a recently improved mid-terrace two-bedroom home positioned a short walk from Stamford town centre. The ground floor offers a living room, kitchen/breakfast room and a sunny conservatory that extends the living space, while upstairs provides two double bedrooms and a well-appointed bathroom. A paved driveway takes two cars and the rear garden is enclosed, private and mostly lawned with a gravel patio and shed.
This property suits first-time buyers or couples seeking a manageable, low-cost-to-run home. It has been much improved by the current owner and benefits from mains gas central heating, double glazing and an efficient, compact layout (approximately 842 sq ft). Council Tax Band A helps keep running costs down.
Buyers should note the EPC rating is D and the building is a solid-brick mid-20th-century construction with no confirmed cavity insulation (assumed uninsulated). The plot is modest and the house sits in an area described as deprived with average local crime — factors to weigh for longer-term resale or refurbishment plans.
Full material information disclosures are available and should be reviewed before purchase. Overall, the house offers a well-presented, ready-to-live-in option with parking and outdoor space close to Stamford’s amenities, with potential for further improvement if desired.
2 bedroom terraced house for sale in Drift Avenue, Stamford, PE9 — £175,000 • 2 bed • 1 bath • 576 ft²
2 bedroom terraced house for sale in Banks Crescent, Stamford, PE9 — £215,000 • 2 bed • 1 bath • 608 ft²
2 bedroom terraced house for sale in Gloucester Road, Stamford, PE9 — £215,000 • 2 bed • 1 bath • 690 ft²
3 bedroom terraced house for sale in Arran Road, Stamford, PE9 — £250,000 • 3 bed • 1 bath • 948 ft²
3 bedroom terraced house for sale in Drift Road, Stamford, PE9 — £370,000 • 3 bed • 2 bath • 1507 ft²
2 bedroom end of terrace house for sale in Northumberland Avenue, Stamford, PE9 — £190,000 • 2 bed • 1 bath • 593 ft²






































