PL3 5HP - 5 bedroom end of terrace house for sale in Hartley Avenue,…

View on Property Piper

5 bedroom end of terrace house for sale in Hartley Avenue, Mannamead, PL3 5HP, PL3

Summary - 20 HARTLEY AVENUE PLYMOUTH PL3 5HP

5 bed 3 bath End of Terrace

**Standout Features:**
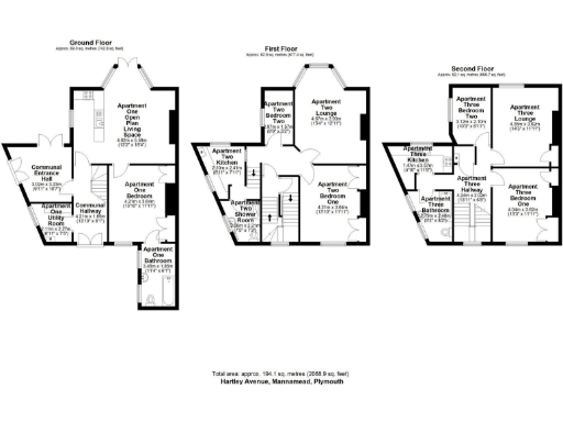
- Unique freehold property with three separate apartments
- 1 x one-bedroom apartment and 2 x two-bedroom apartments
- No onward chain, excellent buy-to-let potential
- Communal south-facing garden, small private courtyards
- Basement storage area (currently sealed)
- Quiet, sought-after location near schools and parks

This Victorian end-of-terrace property presents a unique opportunity to invest in a three-apartment configuration with solid renovation potential. Offering a total of five bedrooms and three bathrooms, the layout includes a spacious ground floor one-bedroom flat with an open-plan living area, and two sizeable two-bedroom apartments on the first and top floors, each boasting ample natural light and original character features such as high ceilings and bay windows.

Located in the tranquil cul-de-sac of Hartley Avenue, you’ll enjoy easy access to nearby schools, lush community gardens, and convenient transport routes into Plymouth city center, enhancing its appeal for families and renters alike. Although the property requires modernization, it holds incredible potential to create attractive rental units or a large family home. The surrounding area shows low crime rates and a high standard of living, making it a wise investment choice.

Don't miss out on this chain-free property positioned in a comfortable neighborhood—an ideal canvas for your vision with future flexibility for renovations to suit your preferences. Act quickly, as opportunities like this in a prime locality are hard to come by!

Property Details

Image Descriptions

Floorplan Description

Rooms

Textual Property Features

Detected Visual Features

EPC Details

Nearby Schools

Nearest Bars And Restaurants

,,,,}

Nearest General Shops

,,}

Nearest Grocery shops

,,}

Nearest Supermarkets

,,}

Nearest Religious buildings

,,}

Nearest Medical buildings

,,,}

Nearest Leisure Facilities

,,,,}

Nearest Tourist attractions

,,}

Nearest Train stations

,,,,}

Nearest Bus stations and stops

,,,,}

Nearest Hotels

,,}

Tags

Local Market Stats

AirBnB Data

Meta

High Res Images

Compatible Images

Low res Images

Thumbnails

Raw Images

High Res Floorplan Images

Compatible Floorplan Images

Low res Floorplan Images

FloorplanImages Thumbnail

Raw Floorplan Images