Chain-free four-bedroom detached home near shops, school and green spaces.
No onward chain — vacant possession available
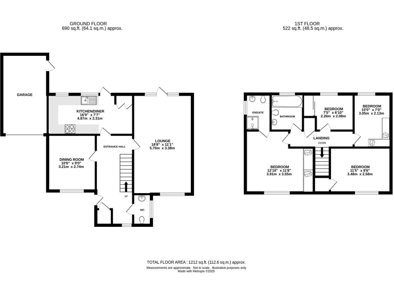
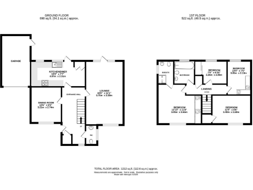
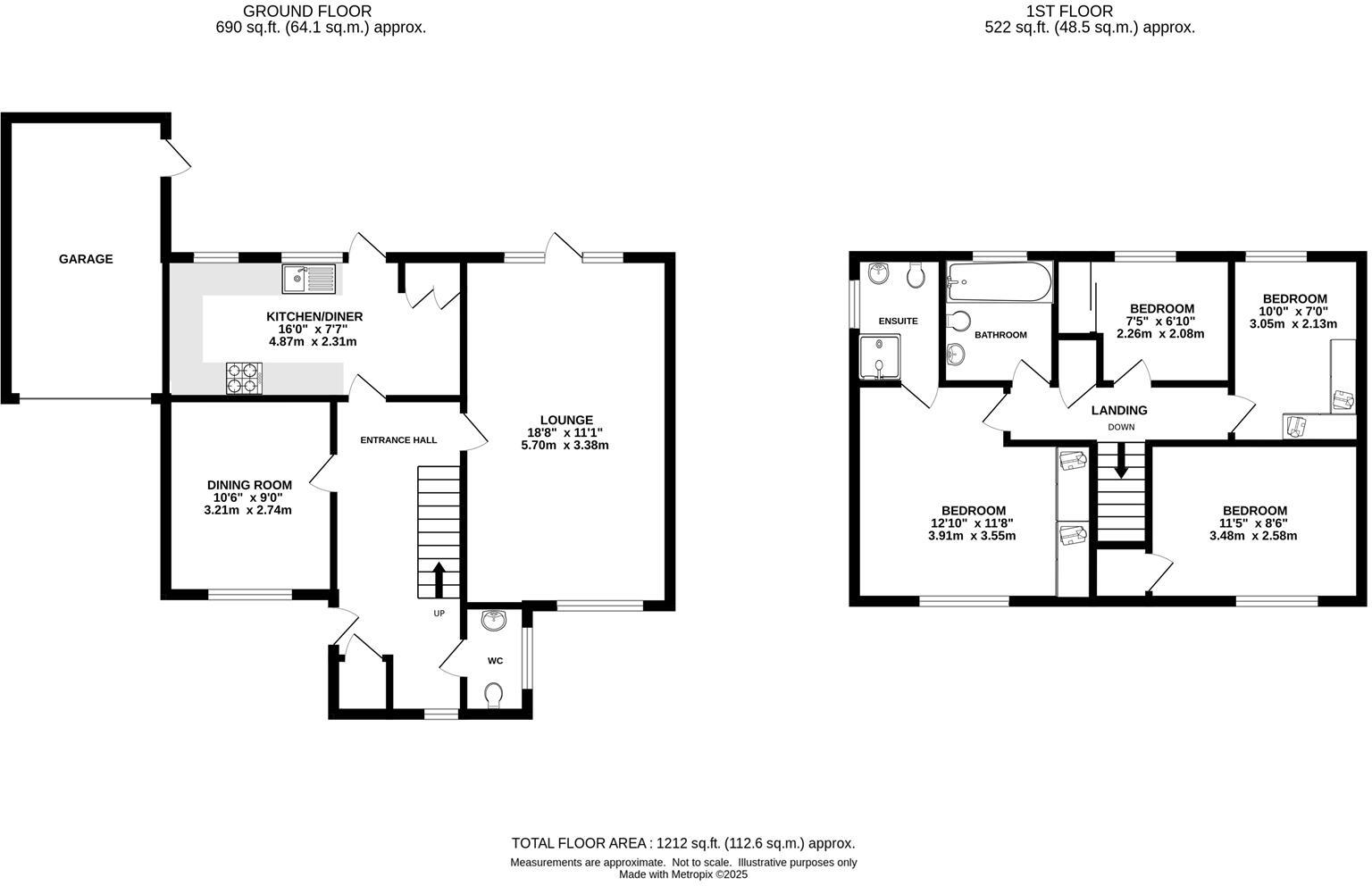
A practical four-bedroom detached family home set at the end of a quiet cul-de-sac on the popular Kelvedon Green development. The layout works well for family life with a large lounge, separate dining room and a kitchen/diner that opens to the garden. The principal bedroom has an en-suite; three further good-sized bedrooms and a family bathroom complete the first floor. The house extends to approximately 1,212 sq ft and sits on a decent plot with a paved patio and lawn.
This property is offered chain free, with an attached single garage and private driveway providing practical off-street parking. Local conveniences are within walking distance: shops, bus routes into Brentwood, playgrounds, tennis courts and Kelvedon Hatch primary school. Broadband and mobile signal are strong; area indicators show an affluent, low-risk location with no flood risk and affordable council tax.
Practical points to note: the plot and front amenity space are modest for a detached home, and the garage is a single bay with pedestrian rear access. The house dates from the 1980s with conventional cavity-wall construction and double glazing (installation dates unknown). Overall the accommodation appears well maintained and ready for immediate occupation, making it suitable for growing families or buyers seeking straightforward, chain-free purchase in a pleasant suburban setting.
 4 bedroom detached house for sale in Roding Drive, Kelvedon Hatch, Brentwood, CM15 — £570,000 • 4 bed • 1 bath • 1386 ft²
 4 bedroom detached house for sale in Roding Drive, Kelvedon Hatch, Brentwood, CM15 — £570,000 • 4 bed • 1 bath • 1386 ft² 4 bedroom link detached house for sale in Horseman Court, Kelvedon Hatch, Brentwood, CM15 — £550,000 • 4 bed • 1 bath • 1171 ft²
 4 bedroom link detached house for sale in Horseman Court, Kelvedon Hatch, Brentwood, CM15 — £550,000 • 4 bed • 1 bath • 1171 ft² 4 bedroom detached house for sale in Great Fox Meadow, Kelvedon Hatch, CM15 — £575,000 • 4 bed • 1 bath • 1140 ft²
 4 bedroom detached house for sale in Great Fox Meadow, Kelvedon Hatch, CM15 — £575,000 • 4 bed • 1 bath • 1140 ft² 4 bedroom detached house for sale in Parsonage Field, Doddinghurst, Brentwood, CM15 — £590,000 • 4 bed • 2 bath • 1504 ft²
 4 bedroom detached house for sale in Parsonage Field, Doddinghurst, Brentwood, CM15 — £590,000 • 4 bed • 2 bath • 1504 ft² 3 bedroom semi-detached house for sale in Kelvedon Green, Kelvedon Hatch, Brentwood, CM15 — £425,000 • 3 bed • 2 bath • 1023 ft²
 3 bedroom semi-detached house for sale in Kelvedon Green, Kelvedon Hatch, Brentwood, CM15 — £425,000 • 3 bed • 2 bath • 1023 ft² 4 bedroom house for sale in Shortcroft, Kelvedon Hatch, Brentwood, Essex, CM15 — £550,000 • 4 bed • 2 bath • 1194 ft²
 4 bedroom house for sale in Shortcroft, Kelvedon Hatch, Brentwood, Essex, CM15 — £550,000 • 4 bed • 2 bath • 1194 ft²










































































