Large family home with flexible annex and scenic outdoor living.
Elevated plot with sweeping views to the Galloway Hills
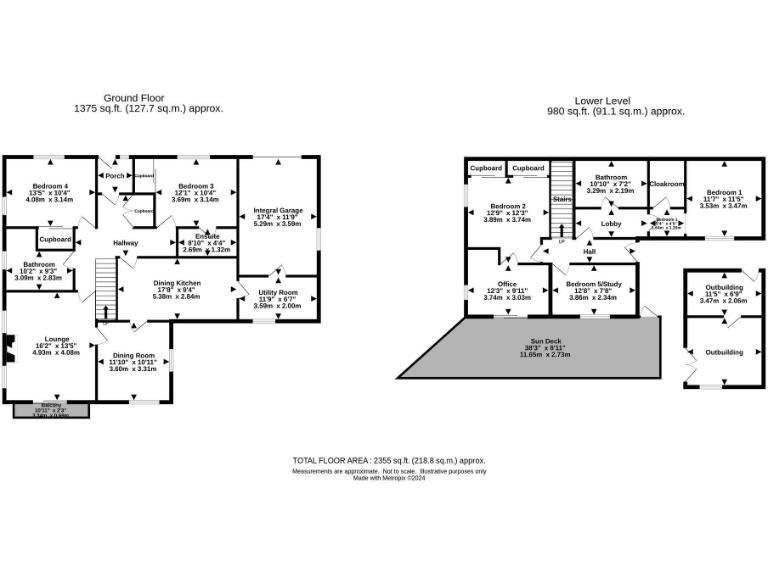
Set on an elevated plot with wide views to the Galloway Hills, this five-double-bedroom detached villa delivers generous, family-sized accommodation across two floors. The principal lounge opens onto an upper balcony for soaking in the outlook, while a spacious open-plan dining kitchen and separate dining area make family living and entertaining straightforward. The property is presented in walk-in condition and benefits from full double glazing, gas central heating and a multi-fuel stove that adds warmth and character.
Outside, maintained lawn, patio and sun decking provide low‑maintenance outdoor space, plus an integral garage and off-road parking. A separate annex with mains power and water inflow sits within the garden and offers flexible use — home office, hobby space or potential income subject to any necessary permissions. The location is convenient for local primary and secondary schools and town amenities, with abundant countryside and coastal leisure options nearby.
Practical considerations: broadband speeds are slow here, and council tax is described as expensive. The wider area is an ageing rural community with noted economic deprivation; buyers should factor local services and connectivity into their decision. The property provides strong family space and excellent views but buyers seeking fast internet or lower running costs should check providers and council banding before proceeding.
Overall, this home suits families or buyers seeking a spacious, characterful house with panoramic countryside views and flexible outbuildings. Viewing is recommended to appreciate the layout, outlook and garden setting in person.
5 bedroom detached house for sale in Old Edinburgh Road, Minnigaff, DG8 — £355,000 • 5 bed • 2 bath • 2379 ft²
4 bedroom bungalow for sale in 2 Doonhill Wood, Newton Stewart, Dumfries and Galloway, DG8 — £400,000 • 4 bed • 2 bath • 2303 ft²
5 bedroom detached house for sale in Carse Minnoch Cottage, Newton Stewart, Dumfries and Galloway, DG8 — £360,000 • 5 bed • 2 bath • 1765 ft²
4 bedroom detached house for sale in Nursery View, Station Road, Newton Stewart, Dumfries and Galloway, DG8 — £260,000 • 4 bed • 3 bath • 1894 ft²
7 bedroom detached house for sale in Doonhill House and Cottages, Newton Stewart, DG8 — £650,000 • 7 bed • 4 bath • 1858 ft²
4 bedroom detached house for sale in Carsluith, Newton Stewart, Dumfries and Galloway, DG8 — £320,000 • 4 bed • 2 bath • 2196 ft²










































































































































































































































































