**Standout Features:**
- Portfolio of four two-bedroom apartments in The Lambs Building
- Annual rent roll of £72,000 with a gross rental yield of 7.5%
- Fantastic views overlooking Market Square
- Modern furnishings included, high ceilings, and abundant natural light
- Leasehold with 232 years remaining
- No parking available
- All units currently tenanted until August/September 2025
- Service charge: £1514.36 per annum and ground rent: £300 annually
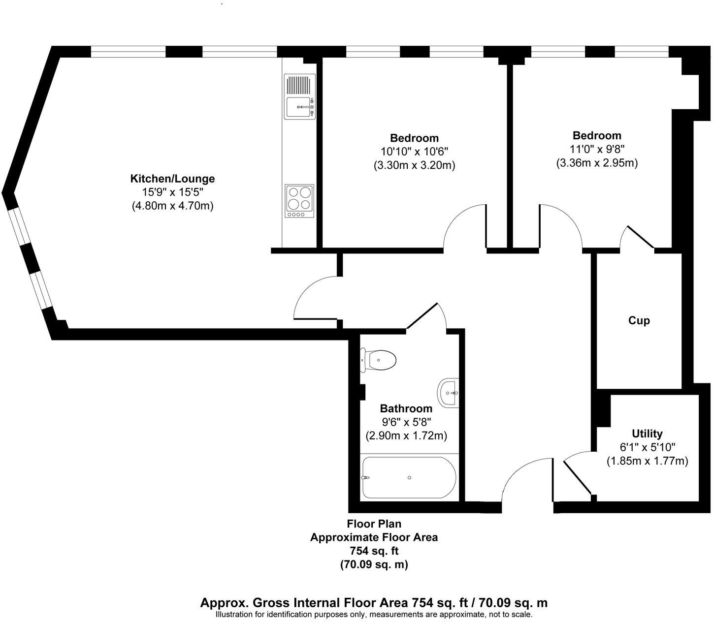
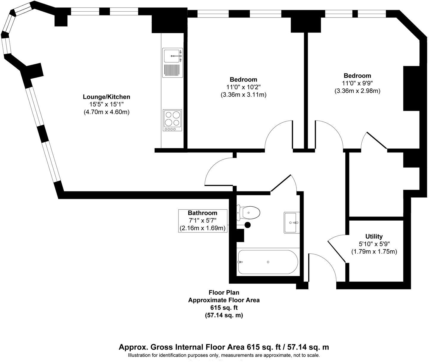
This exceptional portfolio of two-bedroom apartments offers a lucrative investment opportunity right in the heart of Nottingham City Centre. With a total rental income of £72,000 per year and a gross rental yield of 7.5%, these properties ensure solid returns for potential owners. Located with stunning views of the vibrant Market Square, each apartment comes furnished to a high standard, already generating income until at least August 2025.
Built in 2018, the apartments feature modern design elements, high ceilings, and ample natural light, creating comfortable living spaces ideal for students or professionals seeking rentals in a multicultural urban neighborhood. However, please note that there is no parking available and the service charge is an ongoing consideration. With a competitive asking price of £850,000, this opportunity won't last long, making it an ideal choice for savvy investors looking to expand their portfolio in a prime location.
2 bedroom apartment for sale in 2 South Parade, Nottingham, NG1 — £200,000 • 2 bed • 1 bath • 581 ft²
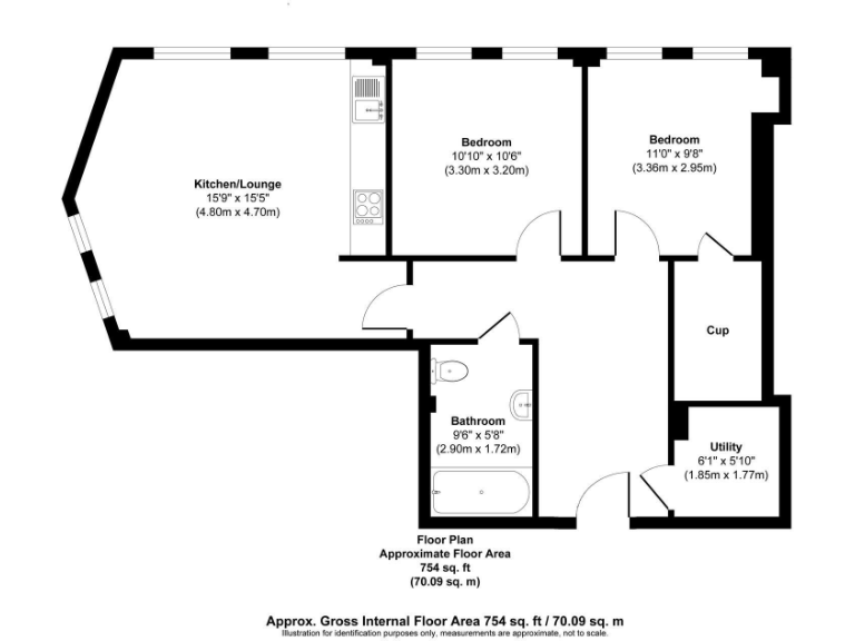
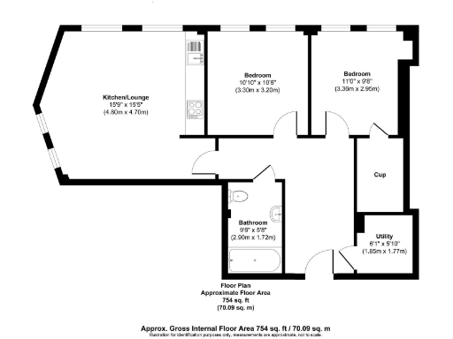
2 bedroom apartment for sale in 2 South Parade, Nottingham, NG1 — £250,000 • 2 bed • 1 bath • 775 ft²
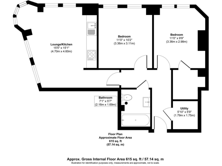
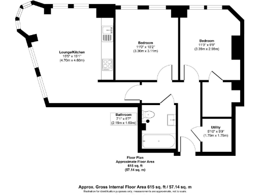
2 bedroom apartment for sale in 2 South Parade, Nottingham, NG1 — £200,000 • 2 bed • 1 bath • 678 ft²
2 bedroom apartment for sale in 2 South Parade, Nottingham, NG1 — £200,000 • 2 bed • 1 bath • 678 ft²
Commercial property for sale in Apts 3,7, 11 & 13, The Lambs Building, 2 South Parade, Nottingham, Nottinghamshire, NG1 — £850,000 • 1 bed • 1 bath • 2868 ft²
1 bedroom flat for sale in South Parade, NOTTINGHAM, NG1 — £190,000 • 1 bed • 1 bath • 582 ft²


































































































