Charming one-bedroom home with large private garden and loft potential.
- Stone-fronted end terrace cottage circa 1900
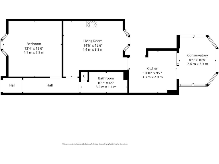
- Spacious front double bedroom with feature fire recess
- Bright conservatory overlooking private rear garden
- Fully floored full-height attic; conversion potential (consents needed)
- Log-burning stove, traditional finishes and wooden floors
- Approximately 58 sqm / 624 sq ft of accommodation
- Freehold; Council Tax Band C; mains gas and sewage
- Area classified very deprived; average broadband speeds
A stone‑fronted one-bedroom end terrace cottage dating from circa 1900, offering comfortable single-storey living with a bright conservatory and a private, landscaped rear garden. The living room benefits from a log-burning stove and views over the mature garden, while the front-facing double bedroom is a generous size for this property type. The house extends to around 58 sq m (c.624 sq ft) and is offered freehold—suitable for a first-time buyer or a downsizer seeking character and outdoor space.
Practical extras include a fully floored attic at full height, presenting genuine potential to create an additional bedroom or flexible space, subject to local consents and building work. The conservatory provides versatile dining or sitting space and links the kitchen to the garden, making the layout flow well for everyday living. Fitted floor coverings, light fittings, window coverings and integrated appliances where applicable are included in the sale.
Buyers should note a few material facts: the property is in an area classified as very deprived, broadband speeds are average, and any attic conversion would require the necessary permissions and investment. Services are mains gas and drainage and the property sits in Council Tax Band C. Overall this is a characterful cottage with good garden space and scope to add value through sensible upgrading or loft conversion.
2 bedroom semi-detached house for sale in 25 High Street, Dollar FK14 7AZ, FK14 — £285,000 • 2 bed • 2 bath • 1205 ft²
2 bedroom apartment for sale in 5A Bridge Street, Dollar FK14 7DF, FK14 — £220,000 • 2 bed • 1 bath • 882 ft²
1 bedroom semi-detached bungalow for sale in Gibson Close, Dollar, Clackmannanshire, FK14 — £129,999 • 1 bed • 1 bath • 408 ft²
2 bedroom apartment for sale in 19 Station Road, Dollar FK14 7EL, FK14 — £280,000 • 2 bed • 2 bath • 882 ft²
1 bedroom terraced house for sale in Ann Street, Tillicoultry, FK13 — £114,995 • 1 bed • 1 bath • 561 ft²
4 bedroom detached house for sale in 8 Princes Crescent, Dollar FK14 7BN, FK14 — £320,000 • 4 bed • 1 bath • 1313 ft²










































































