PR3 1PY - 2 bedroom park home for sale in Wyre Vale Park, Garstang, P…

View on Property Piper

2 bedroom park home for sale in Wyre Vale Park, Garstang, PR3

Summary - 12, THE AVENUE, WYRE VALE PARK, PRESTON, GARSTANG PR3 1PY

2 bed 2 bath Park Home

**Key Features:**
- Brand-new bespoke park home measuring 36ft x 22ft
- Spacious lounge and modern fully fitted kitchen
- Master bedroom with en-suite and fitted wardrobe
- Second double bedroom with custom furnishings
- Set in the serene Wyre Vale Residential Park with views of a duck pond
- Chain-free sale, perfect for immediate relocation
- Well-maintained landscaping and low-maintenance exterior

Discover a unique opportunity to create your dream living space at Plot 12, nestled in a tranquil cul-de-sac within the sought-after Wyre Vale Residential Park. This brand-new, spacious park home features an open-plan lounge and fully equipped kitchen, complemented by two comfortable bedrooms, including a master with an en-suite bathroom. Customization options allow you to choose fixtures tailored to your personal taste, making it ideal for those seeking a touch of exclusivity in a scenic environment.

Enjoy the benefits of an active community and low crime rates, while being just moments away from local amenities. A complimentary 12-month membership to the prestigious Acresfield Health Club & Spa adds a luxurious touch to your everyday routine. With the property being chain-free, it offers a hassle-free transition into park living, perfect for families, first-time buyers, or investors seeking a peaceful lifestyle. Don't miss out on this limited opportunity in a picturesque setting.

Property Details

Brochure Descriptions

Image Descriptions

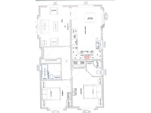
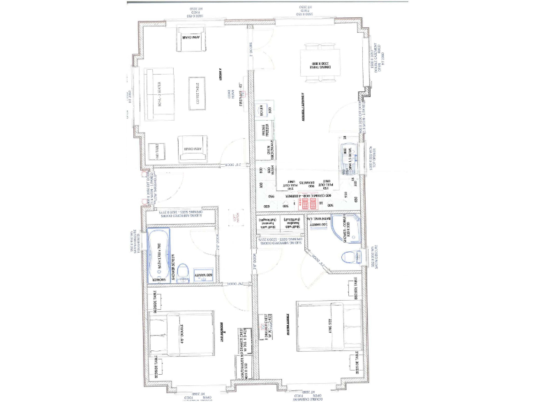
Floorplan Description

Rooms

Textual Property Features

Detected Visual Features

Nearby Schools

Nearest Bars And Restaurants

,,,,}

Nearest General Shops

,,}

Nearest Grocery shops

,,}

Nearest Supermarkets

,,}

Nearest Religious buildings

,,}

Nearest Medical buildings

,,,}

Nearest Leisure Facilities

,,,,}

Nearest Tourist attractions

,,}

Nearest Train stations

,,,,}

Nearest Bus stations and stops

,,,,}

Nearest Hotels

,,}

Tags

Local Market Stats

Similar Properties

Meta

High Res Images

Compatible Images

Low res Images

Thumbnails

Raw Images

High Res Floorplan Images

Compatible Floorplan Images

Low res Floorplan Images

FloorplanImages Thumbnail

Raw Floorplan Images