Minutes from tube and park — ideal for first-time buyers or buy-to-let.
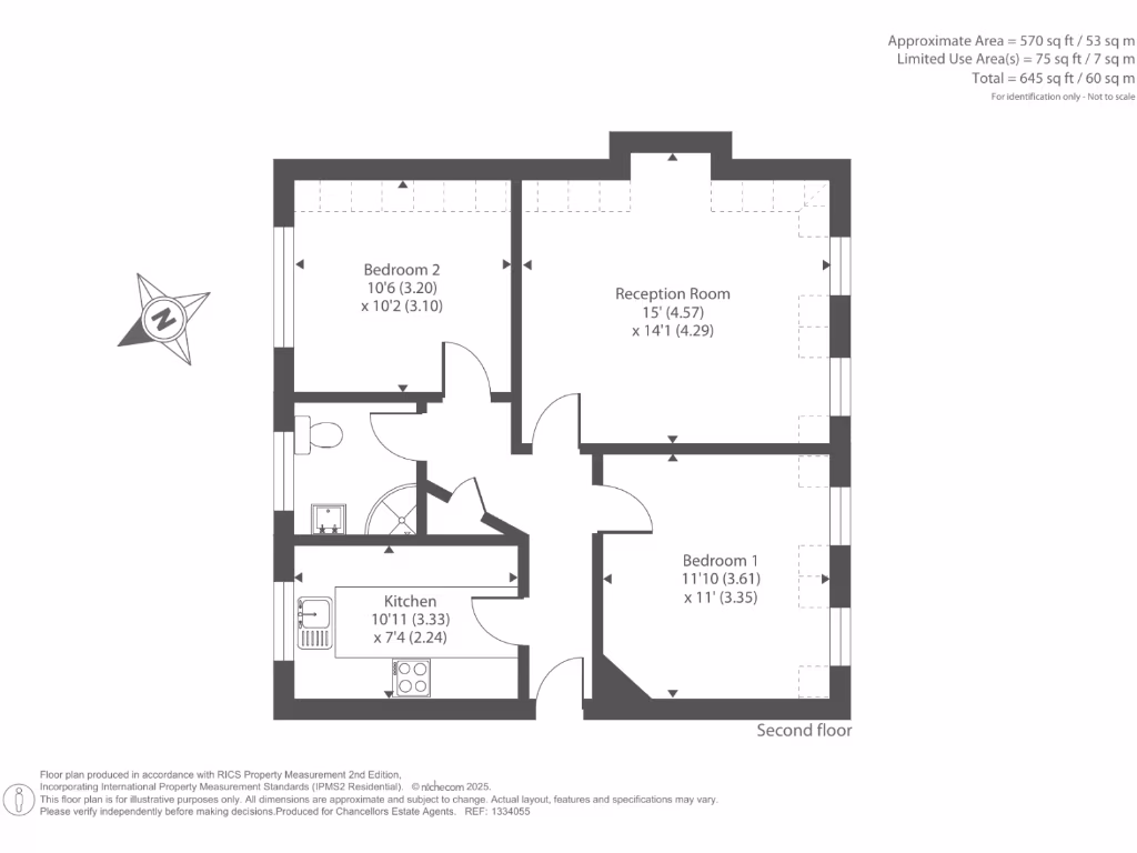
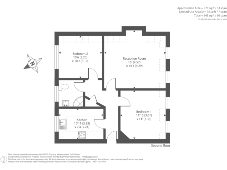
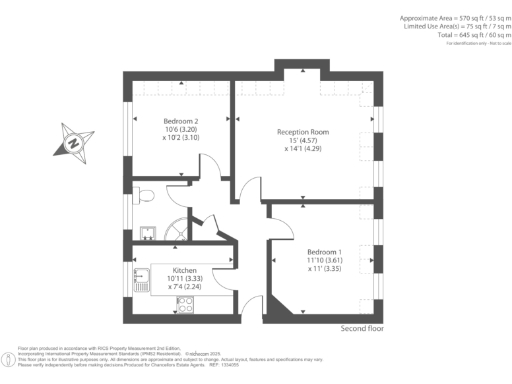
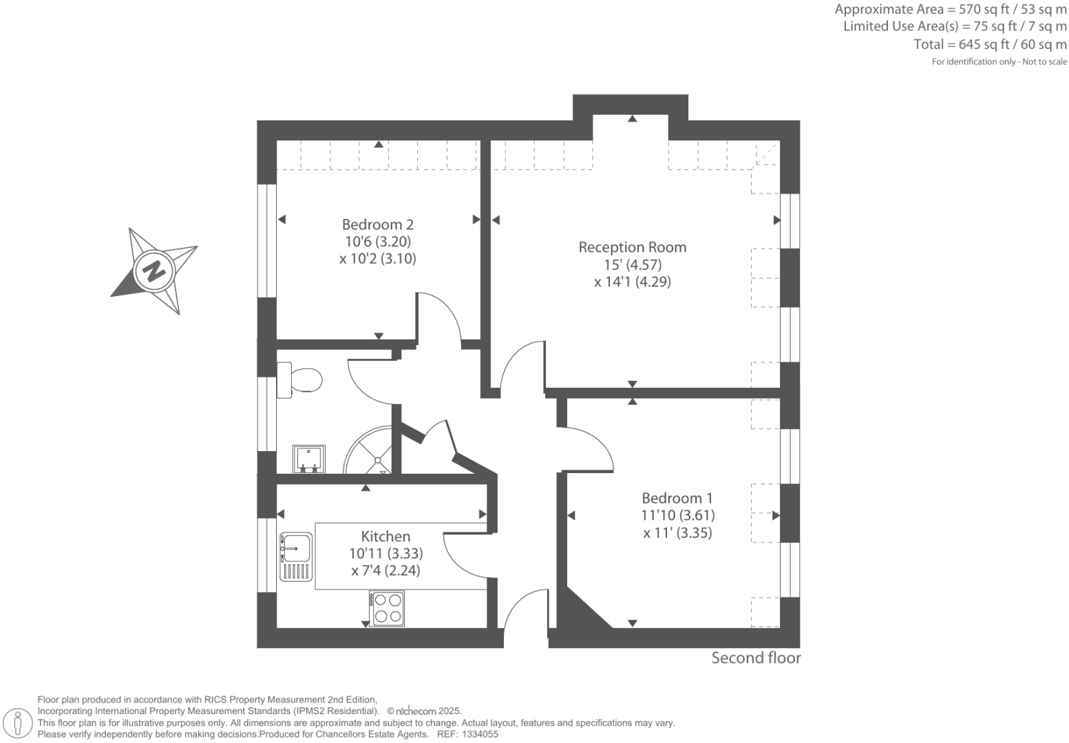
Two double bedrooms, reception room and fitted kitchen
A bright two-double-bedroom apartment on the second floor, set in central Richmond just a minute’s walk from the tube station and a short stroll to Richmond Park. The apartment offers a fitted kitchen, a reception room and one bathroom across about 645 sq ft — a practical layout for first-time buyers or buy-to-let investors.
The property benefits from a long lease (c.148 years remaining) and a share of freehold, and is offered chain-free for a straightforward purchase. Outstanding local schools and fast broadband make this a convenient home for young families or professionals commuting into central London.
Buyers should note the building’s early-20th-century construction and timber-frame walls with no assumed insulation, which may affect thermal performance and future maintenance. Service charges average around ,1,092 per year and the area records a very high local crime level; purchasers should factor these into affordability and insurance decisions.
Overall this is a well-located, traditionally laid-out apartment with good rental potential and scope for modest cosmetic updating. Its proximity to transport, parks and amenities is the primary draw for those seeking an accessible Richmond address.
2 bedroom apartment for sale in Church Road, Richmond, TW10 — £625,000 • 2 bed • 1 bath • 518 ft²
2 bedroom flat for sale in Mount Ararat Road, Richmond, TW10 — £587,500 • 2 bed • 1 bath • 632 ft²
2 bedroom apartment for sale in Larkfield Road, Richmond, TW9 — £575,000 • 2 bed • 1 bath • 573 ft²
2 bedroom flat for sale in Crown Terrace, Richmond, TW9 — £450,000 • 2 bed • 1 bath • 700 ft²
2 bedroom apartment for sale in Redholme, Richmond, TW10 — £525,000 • 2 bed • 1 bath • 592 ft²
2 bedroom flat for sale in Catherine Drive, Richmond, TW9 — £595,000 • 2 bed • 1 bath • 734 ft²


















































