Spacious period home near Tooting Broadway and top-rated schools.
Bright reception room and open-plan kitchen diner
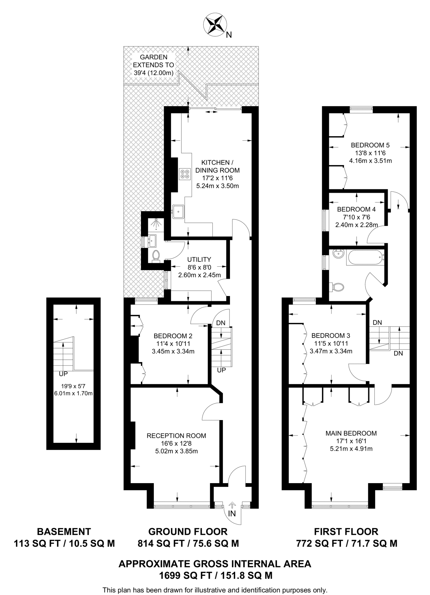
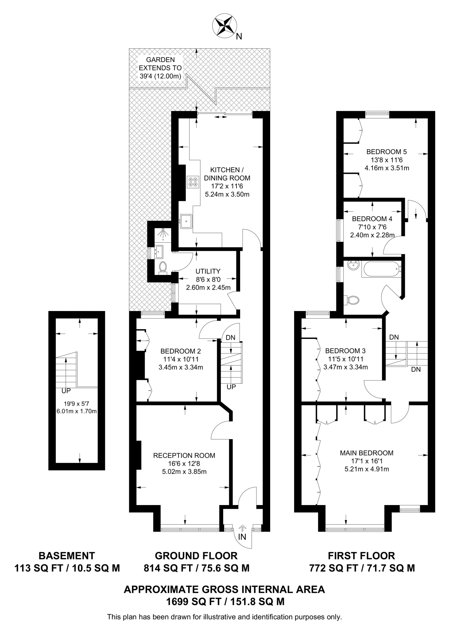
This Victorian mid-terrace combines generous living space with practical family layout. The ground floor offers a bright reception room and an open-plan kitchen/dining area that opens toward a quiet private garden, ideal for weekend play and entertaining. Four double bedrooms across the upper floors provide comfortable sleeping space and flexibility for home working.
Located a short walk from Tooting Broadway (Northern Line), the house gives quick central London links and sits in an inner-city cosmopolitan neighbourhood with shops, cafés and green space nearby. Several highly rated state schools — including an Outstanding primary and secondary — make this a convenient choice for families.
The property is freehold, has double glazing and mains gas heating via boiler and radiators, plus fast broadband and excellent mobile signal. The house dates from c.1900–1929 and retains period features such as high ceilings, sash windows and cornicing, which add character and scope for sympathetic updating.
Notable practical points: the solid brick walls are assumed to lack cavity insulation, so thermal upgrades would improve comfort and running costs. The plot is small and there are only two bathrooms for four double bedrooms — a potential consideration for larger families. Overall, this is a well-located, characterful family home with clear potential to modernise and personalise.
4 bedroom terraced house for sale in Totterdown Street, Tooting, London, SW17 — £950,000 • 4 bed • 2 bath • 1246 ft²
4 bedroom end of terrace house for sale in Fallsbrook Road, Streatham, London, SW16 — £1,000,000 • 4 bed • 2 bath • 1454 ft²
4 bedroom terraced house for sale in Gassiot Road, Tooting, London, SW17 — £925,000 • 4 bed • 2 bath • 1327 ft²
4 bedroom terraced house for sale in Eswyn Road, SW17 — £1,250,000 • 4 bed • 2 bath • 1570 ft²
4 bedroom terraced house for sale in Blackshaw Road, Tooting, London, SW17 — £950,000 • 4 bed • 3 bath • 1291 ft²
4 bedroom terraced house for sale in Eswyn Road,
Tooting Broadway, SW17 — £1,100,000 • 4 bed • 2 bath • 1271 ft²


































































































