Light-filled home minutes from Surbiton station and town centre.
Upper-ground two-bedroom apartment with private garden access
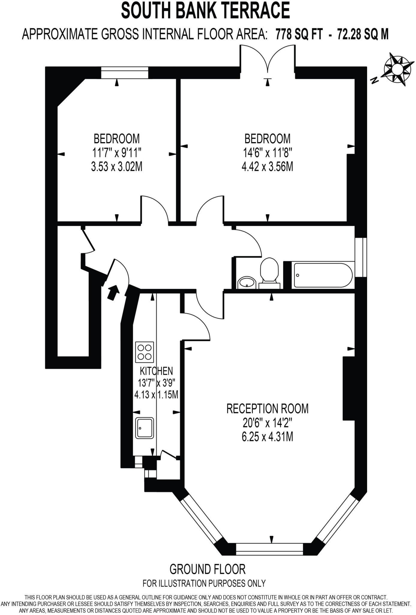
Set on the upper ground floor of an attractive Victorian terrace, this two-bedroom apartment combines classic period features with practical everyday living. A large reception room with high ceilings and an elegant bay window fills the space with natural light, while decorative coving and original shutters retain character.
Both bedrooms are generous doubles; the main bedroom opens directly onto a private garden — a rare city-centre benefit for relaxation and simple outdoor entertaining. The property sits within walking distance of Surbiton mainline station and the town centre, making commuting and local amenities extremely convenient.
Practical strengths include a long 139-year lease, share of freehold tenure, EPC rating C and mains gas central heating. Note the building is solid-brick (likely without wall insulation) and some internal finishes are dated (carpets, typical Victorian-era maintenance), so buyers should budget for cosmetic updating or optional energy improvements. On-street permit parking applies; there is no flooding risk.
2 bedroom flat for sale in Catherine Road, Surbiton, KT6 — £650,000 • 2 bed • 1 bath • 809 ft²
2 bedroom flat for sale in Manor Drive, Surbiton, KT5 — £450,000 • 2 bed • 1 bath • 611 ft²
2 bedroom apartment for sale in Lovelace Gardens, Surbiton, KT6 — £475,000 • 2 bed • 1 bath • 767 ft²
2 bedroom flat for sale in Lovelace Road, Surbiton, KT6 — £390,000 • 2 bed • 1 bath • 573 ft²
1 bedroom apartment for sale in Oak Hill, Kingston, KT6 — £290,000 • 1 bed • 1 bath • 462 ft²
2 bedroom flat for sale in Manor Drive, Surbiton, KT5 — £600,000 • 2 bed • 1 bath • 959 ft²






























