Secluded village plot with huge potential and countryside outlook.
0.35 acre secluded plot adjoining Peckforton Estate fields
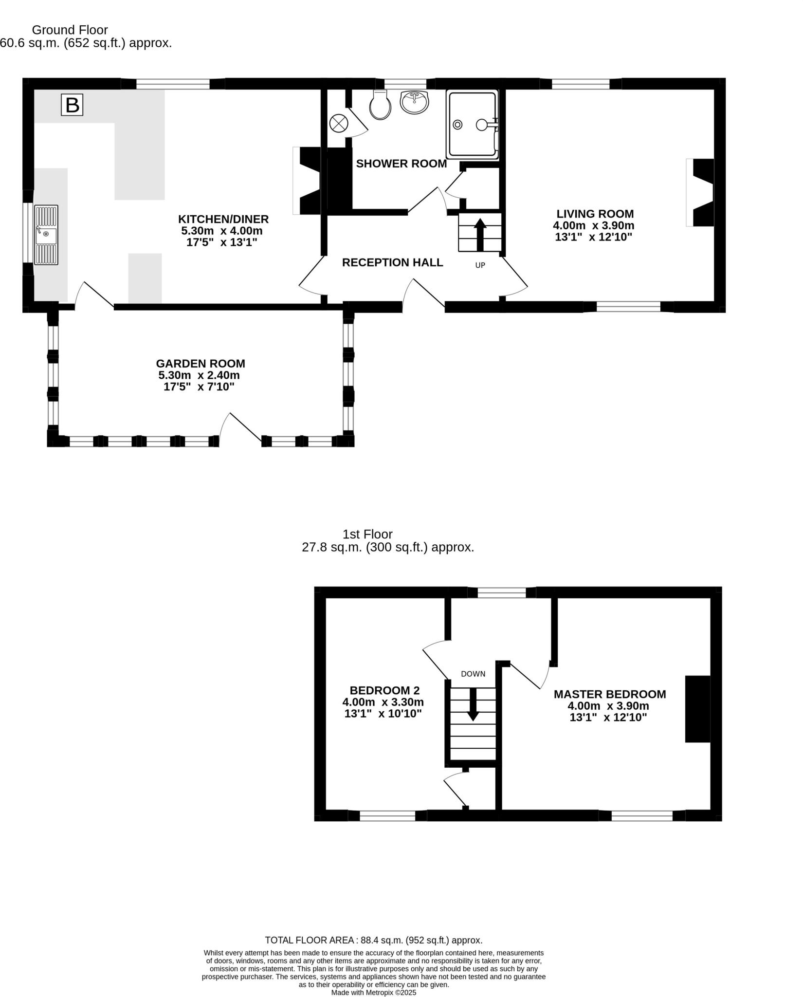
Detached 2-bed cottage totalling 952 sq ft, small footprint
Good-size outbuilding west of plot — storage or workshop use
Requires complete renovation; not mortgageable in current state
Outstanding potential to extend or replace, subject to planning (STPP)
Oil central heating present but not connected; will need servicing or replacement
Solid brick walls likely without insulation — upgrade required
Chain free sale; walking distance to Bunbury village and schools
Tucked at the far end of Sadlers Wells, this original Peckforton Estate cottage sits privately on a 0.35 acre plot adjoining estate farmland. The house is small in footprint (952 sqft) and retains period character, but is basic and requires a complete renovation; in its current condition it is not mortgageable.
For a buyer prepared to invest, the site offers clear options: a sympathetic restoration, a substantial extension, or a replacement dwelling subject to planning permission (STPP). There is a good-size outbuilding to the west of the plot that adds immediate storage or workshop potential while works are carried out.
Practical considerations are straightforward and honest: oil central heating is present but not connected, the solid brick walls likely lack modern insulation, and the property will need full modernisation to meet current standards. The plot’s size, privacy and proximity to Bunbury village amenities and reputable local schools are strong long-term value drivers.
This is a true developer/renovator opportunity for a family or buyer seeking a bespoke project in a sought-after Cheshire village. The sale is chain-free, giving flexibility to move quickly once a plan is in place.
2 bedroom semi-detached house for sale in Bank Cottage, Stone House Lane, Peckforton, Tarporley, CW6 — £310,000 • 2 bed • 1 bath • 920 ft²
4 bedroom semi-detached house for sale in Picturesque cottage of supreme quality in Horsley Lane, Beeston, CW6 — £750,000 • 4 bed • 3 bath • 2000 ft²
3 bedroom mews property for sale in Church Row, Bunbury, Tarporley, CW6 — £294,000 • 3 bed • 1 bath • 1265 ft²
3 bedroom semi-detached house for sale in School Lane, Bunbury, CW6 — £550,000 • 3 bed • 2 bath • 1298 ft²
3 bedroom semi-detached house for sale in Wyche Road, Bunbury, Tarporley, CW6 9PW, CW6 — £250,000 • 3 bed • 1 bath • 827 ft²
2 bedroom detached house for sale in Stone House Lane, Peckforton, CW6 — £525,000 • 2 bed • 1 bath • 1563 ft²






























