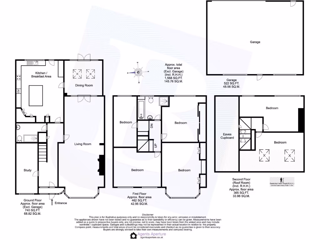
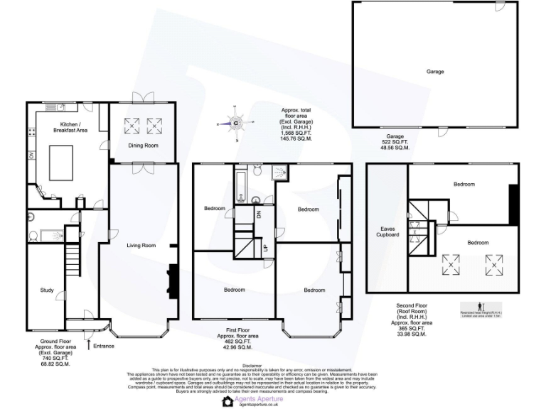
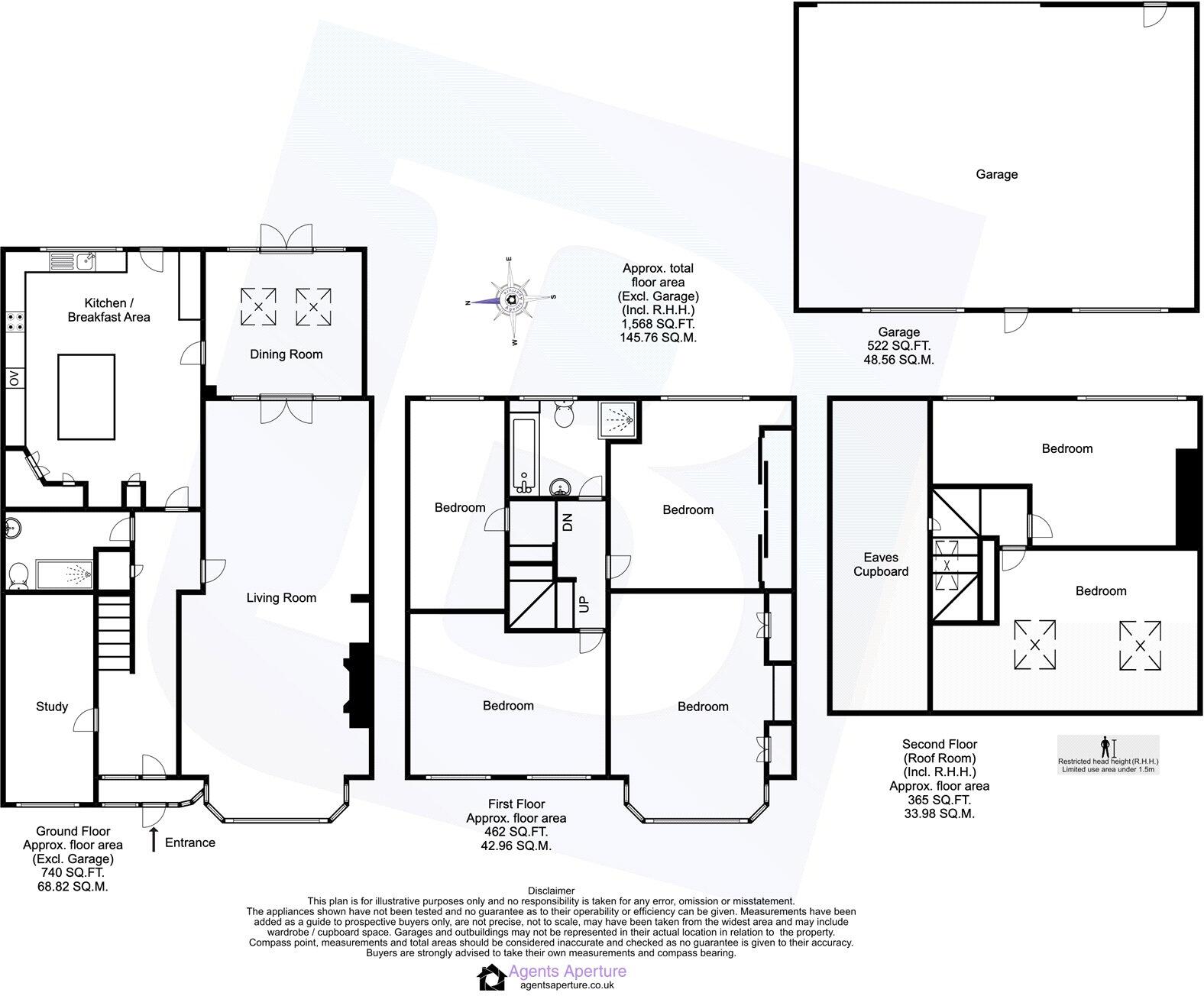
**Standout Features:**
- Six spacious bedrooms and two modern bathrooms
- Open layout with a contemporary kitchen featuring an island and breakfast bar
- Three generous reception rooms, perfect for family gatherings
- Double detached garage and off-street parking for up to three vehicles
- Located in a low-crime, family-friendly neighborhood
- Excellent mobile signal and fast broadband speeds
**Potential Concerns:**
- Solid brick walls without insulation (potential for energy efficiency upgrades)
- Average area deprivation may influence long-term property value
**Summary:**
Presenting a remarkable opportunity for families, this end-of-terrace six-bedroom home is both spacious and functional. Boasting a modern kitchen with an island and an open layout, it harmonizes comfort with contemporary living, making it ideal for entertaining and family activities. The property includes three generous reception areas, ensuring ample space for life’s myriad moments. Enjoy off-street parking for three vehicles and the luxury of a double detached garage.
While the brick construction offers durability, the absence of insulation presents a renovation opportunity for the new owners. Nestled in a serene suburban setting with low crime rates, this residence is strategically located near reputable schools like Harrow Lodge and Hornchurch High, enhancing its appeal for families. Capitalize on this exceptional freehold property, guided by competitive pricing between £600,000 - £630,000—don’t miss your chance to call this inviting space home!
6 bedroom detached house for sale in Shaw Close, Hornchurch, RM11 — £950,000 • 6 bed • 4 bath • 2452 ft²
3 bedroom semi-detached house for sale in Lancaster Drive, Hornchurch, RM12 — £525,000 • 3 bed • 2 bath • 1028 ft²
4 bedroom detached house for sale in Forest Road, Romford, RM7 — £600,000 • 4 bed • 3 bath • 1458 ft²
4 bedroom semi-detached house for sale in Surrey Drive, Hornchurch, RM11 — £550,000 • 4 bed • 2 bath • 1199 ft²
4 bedroom semi-detached house for sale in Rainsford Way, Hornchurch, RM12 — £550,000 • 4 bed • 2 bath • 1089 ft²
4 bedroom semi-detached house for sale in Primrose Glen, Hornchurch, RM11 — £650,000 • 4 bed • 2 bath • 1558 ft²














































































































