Spacious six‑bed Edwardian with sunny garden and garage, ideal for family refurbishment.
Six well‑proportioned bedrooms across three storeys
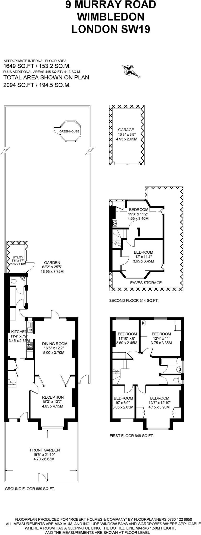
A grand Edwardian semi in Wimbledon Village, this six‑bedroom home sits on a decent plot with a sunny south‑westerly garden and a separate garage. The house retains period charm — high ceilings, bay windows and generous room proportions — and offers flexible family living across multiple floors. Its location is a major draw: within easy reach of Wimbledon Common, village shops and highly regarded schools, ideal for families seeking space and convenience.
The property has been in the same family for decades and offers clear scope to modernise and personalise. Accommodation includes two reception rooms, a kitchen/breakfast room with pantry and utility, six bedrooms, one bathroom and a separate WC — practical for everyday family life but with only a single main bathroom for six bedrooms. Services include gas boiler heating and double glazing (install dates unknown).
Practical considerations are straightforward: the house is freehold, in a very low‑crime, affluent area with excellent broadband and mobile signal. However, it will likely need updating and energy‑efficiency improvements — the solid brick walls appear uninsulated — and the single bathroom and separate WC could be a constraint for larger families. Council tax is quite expensive. For buyers wanting a characterful family home in a top Wimbledon location, this property presents strong potential once modernised.
6 bedroom detached house for sale in Murray Road, Wimbledon Village, SW19 — £4,995,000 • 6 bed • 5 bath • 4401 ft²
6 bedroom detached house for sale in Murray Road, London, SW19 — £4,995,000 • 6 bed • 5 bath • 4994 ft²
6 bedroom semi-detached house for sale in Dora Road, Wimbledon Park, SW19 — £2,000,000 • 6 bed • 3 bath • 2261 ft²
6 bedroom house for sale in Dora Road, Wimbledon Village, SW19 — £2,400,000 • 6 bed • 2 bath • 3286 ft²
6 bedroom detached house for sale in Parkside Gardens, Wimbledon Village, SW19 — £5,950,000 • 6 bed • 4 bath • 4592 ft²
6 bedroom house for sale in Worple Road, Wimbledon, SW19, SW20 — £1,750,000 • 6 bed • 2 bath • 2713 ft²










































































