**Standout Features:**
- Ground floor commercial premises with rental income potential
- Large one-bedroom flat spanning two floors
- Prime town center location with excellent access to amenities
- Double glazing and gas central heating for comfort
- Currently generating £800 PCM from the shop and £475 PCM from the flat
- Freehold title with chain-free transaction
**Summary:**
Discover a unique investment opportunity in the heart of Middleton, Manchester. This expansive ground floor commercial property includes a spacious one-bedroom flat above, providing both rental income and versatile living arrangements. Ideally located just steps from a 24-hour Tesco, Middleton Shopping Centre, and various banks and eateries, this property captures the essence of urban convenience.
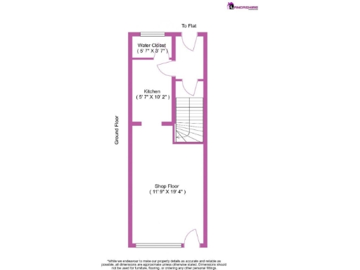
The commercial space features an efficient layout with a shop front, kitchen, and water closet, currently tenanted as a grocer for £800 PCM. The flat above boasts a generous living area and separate kitchen/dining space on the first floor, while the second floor hosts a tranquil double bedroom and a well-sized bathroom. With modern amenities like double glazing and gas central heating, it’s perfect for both investors seeking rental income and families looking for a comfortable home.
Although the property may require some maintenance and cosmetic updates, its central location, solid rental history, and potential for future flexibility in design make it a smart choice. Don’t miss this opportunity – such prime town center properties are rarely available for long!
Property for sale in Oldham Road, Middleton, Manchester, M24 — £125,000 • 1 bed • 1 bath • 571 ft²
Commercial property for sale in Dantzic Street, Manchester, M4 — £575,000 • 2 bed • 2 bath • 754 ft²
High street retail property for sale in Former "Kidz Klub Midd", Assheton Street, Middleton, Manchester, M24 6BU, M24 — £325,000 • 1 bed • 1 bath • 3333 ft²
Mixed use property for sale in 233A Boarshaw Road, M24 — £200,000 • 1 bed • 1 bath
Studio apartment for sale in 2 & 4 Old Hall Street and 33 & 36 Fountain Street, Middleton, Rochdale, M24 1AF, M24 — £460,000 • 1 bed • 1 bath
Commercial property for sale in 2 & 4 Old Hall Street and 33 & 36 Fountain Street, Middleton, Rochdale, M24 1AF, M24 — £455,000 • 1 bed • 1 bath










































































